

Artículos
La vivienda como manifestación cultural. Una aproximación al proceso de territorialización de la inmigración chilena en Río Gallegos, Argentina
Cultural espression through dwellings. An approach to the territorialization process of chilean immigration in Río Gallegos, Argentina
Párrafos Geográficos
Universidad Nacional de la Patagonia San Juan Bosco, Argentina
ISSN: 1853-9424
ISSN-e: 1666-5783
Periodicidad: Semestral
vol. 1, núm. 22, 2023
Recepción: 24 Abril 2023
Aprobación: 31 Julio 2023

Cita sugerida:: Norambuena, M., Segovia Stanoss, M., Ampuero, M.I., González, C. y Ampuero, C. (2023). La vivienda como manifestación cultural. Una aproximación al proceso de territorialización de la inmigración chilena en Río Gallegos, Argentina. Párrafos Geográficos 22 (1). ISSN: 1853-9424. ISSN-e: 1666-5783.
Resumen: Río Gallegos, es una ciudad localizada en el extremo sudeste de la provincia de Santa Cruz. A lo largo de su historia fue receptora de inmigrantes provenientes de distintas latitudes: de países europeos, de países limítrofes, de otros países latinoamericanos. Durante el siglo XX, se destacó, por la cantidad de migrantes que se instalaron en la ciudad, la comunidad chilena. Este grupo migratorio se encuentra presente en toda la Patagonia argentina inserto en el trabajo en las estancias, en tareas relacionadas a la construcción, como empleado en las empresas extractivas de hidrocarburos, en la minería del carbón y -en algunos casos- en la administración pública. En Río Gallegos, conformaron dos barrios claramente identificados por los habitantes de la ciudad y con características distintivas que evocan a su lugar de origen y guardan semejanza con algunos sectores de poblaciones ubicadas en el sur de Chile: los barrios Belgrano y Nuestra Señora del Carmen. Este artículo presenta, a partir de las experiencias del equipo de investigación, la articulación de los resultados parciales de dos dispositivos de acercamiento a las trayectorias migratorias que procuran reconocer el impacto de las prácticas socioculturales en el territorio con anclaje en el barrio y la vivienda. Por un lado, el relevamiento de viviendas realizado en los barrios mencionados a partir de la observación directa con registro fotográfico y fichas tipo y, por el otro, el análisis de una entrevista en profundidad realizada a un inmigrante chileno quien -a modo de relato de vida- nos habilita un acercamiento a los múltiples sentidos que asigna a su propio proceso de migración y su relación con el lugar que habita.
Palabras clave: Migración chilena, Paisaje urbano, Identidad cultural, Patagonia austral, Relatos de vida.
Abstract: Río Gallegos is a city located at the most south-easterly part of the province of Santa Cruz. Its history has seen immigrants from different regions: European countries, neighboring countries, other Latin-American countries. In the 20th century, the city was unique in the number of migrants that settled down there, coming from the Chilean community. This migratory group is present in the whole Argentinian Patagonia working in farmhouses, construction, hydrocarbon extraction companies, carbon mining and, in some cases, public administration. In Río Gallegos, this group established two neighborhoods evidently identified by the city’s inhabitants and with distinctive characteristics that recall its place of origin, and they resemble some areas of populations located in the South of Chile: the Belgrano and Nuestra Señora del Carmen neighborhoods. Based on the experiences of the research team, this article exposes the linkage of the partial results of two outreach devices to the migratory trajectories that seek recognition of the impact of sociocultural practices in the territory with anchorage to neighborhood and housing. On one hand, the data collection of the households in the previously mentioned neighborhoods from direct observation and photographic registry and model forms; on the other hand, the in-depth analysis of an interview to a Chilean immigrant who provides us —as a way of life story— with a close-up of the various senses he assigns to his own migration process and his relation to the place he inhabits.
Keywords: Chilean migration, Urban landscape, Cultural identity, Southern Patagonia, Life stories.
Introducción
El presente trabajo expone la articulación de los resultados de dos dispositivos de acercamiento a las trayectorias migratorias de inmigrantes chilenos radicados en la ciudad de Río Gallegos, procurando reconocer el impacto de las prácticas socioculturales en el Territorio que expresa dicha comunidad con anclaje en el barrio -acceso al ámbito público- y la vivienda -acceso al ámbito privado.
Si bien, actualmente, las producciones del equipo que integran los autores del presente, se enmarcan en el Proyecto de Investigación: Trayectorias migratorias de chilenos residentes en Río Gallegos, Patagonia Austral Argentina, éste último se incorpora en una línea temática que se ha consolidado desde sus primeros abordajes en el año 2012. La circunstancia descripta habilitó la posibilidad de realizar nuevos recorridos sobre los registros construidos en el marco del Proyecto de Extensión: Migración, Paisaje Urbano y Patrimonio Cultural. Inventario de viviendas con rasgos derivados de la arquitectura patagónica chilena. Los Barrios Nuestra Señora del Carmen y Belgrano de la ciudad de Río Gallegos[1].
Entre las manifestaciones que se destacan como estrategias culturales realizadas por los actores sociales generadoras de cohesión socioterritorial- religiosidad popular, fiestas y bailes, recursos culinarios y agrupaciones-, la perspectiva adoptada focaliza sobre su traducción como prácticas socioespaciales y -en este caso- su derivación en una arquitectura diferenciada[2].
Para una lectura y exposición más ordenada, el artículo se organiza en ocho apartados; los primeros presentan una introducción al tema y al abordaje, la localización y características del área involucrada en el estudio (poblamiento de Río Gallegos, inmigración a la localidad, constitución de barrios chilenos) y, en adelante, el tratamiento de los resultados y la memoria metodológica de cada uno de los dispositivos.
Localización de Río Gallegos y antecedentes de poblamiento
Río Gallegos es la ciudad capital de la Provincia de Santa Cruz, la más austral de la Patagonia continental argentina, localizada en el departamento Güer Aike (Figura N° 1).
El poblamiento definitivo del área donde se emplaza la ciudad, ocurre a fines de siglo XIX, adoptándose como hito fundacional del poblado a la instalación de la Subdelegación Marítima en diciembre de 1885 con el propósito -entre otros- de resguardar la soberanía argentina ante la aspiración chilena sobre el territorio austral y mares adyacentes.
Si bien inicialmente, como el resto de las localidades costeras del Territorio, el poblamiento se fundó en las necesidad de instalaciones portuarias para el acopio y embarque de la producción lanera, la designación como Capital[3] derivó en una creciente centralización en la toma de decisiones así como de la asignación del gasto e inversión pública para infraestructura -fenómeno que se agudizó a partir de la provincialización del Territorio Nacional-.
Con la transformación de la estructura económica santacruceña desde la ganadería extensiva hacia la actividad minera extractiva a mediados del siglo XX, el área de Río Gallegos se involucró en la explotación carbonífera -específicamente como punto de salida de la producción[4]- y años después como ciudad dormitorio de gran parte del personal que se ha desempeñado en los campos de explotación petrolífera.

Sobre el proceso migratorio: de Chile a Río Gallegos
A lo largo del siglo XX, el Territorio Nacional de Santa Cruz -luego Provincia-, ha recibido flujos migratorios procedentes de distintos países del mundo, –principalmente durante la primera etapa -de origen europeo- y, sobre la segunda mitad mayoritariamente de países limítrofes. A partir de la década de 1940, se observa que los flujos migratorios de mayor relevancia, por su magnitud y permanencia, son los procedentes de la República de Chile, particularmente del sur del país, aunque hubo presencia de chilenos desde décadas anteriores. Se destaca el período comprendido entre las décadas de 1960 y 1980, en las que se producen nuevas oleadas migratorias hacia la Patagonia argentina -en general-, asociadas a dificultades económicas, sociales y a fenómenos naturales, como el terremoto en Valdivia en 1960 o la plaga del tizón, sumado a la restricción de las libertades políticas, que alcanzó su máxima expresión con la instalación de la dictadura en 1973 y a la oferta de nuevos puestos laborales a partir de la instalación de empresas estatales, como Yacimientos Petrolíferos del Estado (YPF), y luego Yacimientos Carboníferos del Estado (YCF) (Ampuero et al, 2020, p.31).
Es decir, Río Gallegos recibió importantes contingentes de chilenos que, en varias décadas, resultó ser continuo. Muchos inicialmente fueron trabajadores golondrinas en las estancias del territorio, principalmente en temporada de esquila y/o como peones de estancia que, en ocasiones, decidieron quedarse, o bien, las siguientes generaciones optaron por radicarse de forma definitiva en la ciudad.
Estos mismos inmigrantes, se incorporaron como eslabón de un sistema de relaciones interpersonales -familiares o comunitarias- que, a modo de “redes migratorias” (Massey et al., 1998; Pedone, 2010), facilitaron el proceso de instalación en la ciudad de otros compatriotas al transmitir información, proporcionar ayuda económica, alojamiento o logística para el traslado; además de la reducción de costos, la integración de estas redes permitía mitigar la incertidumbre que el proceso conllevaba.
El paso del tiempo y la radicación definitiva de gran parte de estos migrantes multiplicaron su incidencia en el territorio, ya que si consideramos la constitución de grupos familiares -hijos, nietos, bisnietos-, encontramos una fuerte influencia en las configuraciones identitarias actuales.
Los barrios chilenos en Río Gallegos: Belgrano y Nuestra Señora del Carmen[5]
Con relación al asentamiento de chilenos en la ciudad, se han identificado dos barrios bien diferenciados y reconocidos por los ciudadanos: Belgrano y Nuestra Señora del Carmen; ambos con características propias y con la impronta de la migración chilena en su estilo arquitectónico, en los cuales perduran tradiciones y manifestaciones culturales provenientes del sur del país trasandino.
Sobre el origen y evolución de estos barrios, miembros de este equipo ya han mencionado que han quedado definidos por la
interacción de los distintos elementos del proceso de expansión urbana, como las políticas públicas de tierras, viviendas y planificación, la presión del mercado inmobiliario y el crecimiento demográfico, entre otros (...) la acción de los inmigrantes chilenos ha sido clave en la configuración y dinámica del espacio y su paisaje (Ampuero et al, 2020, p. 23).
Las áreas que corresponden a estos dos barrios (Figura N°2), actualmente detentan una posición relativa cercana y con fluido contacto con el área central de la ciudad; sin embargo, al momento de iniciar su ocupación se encontraban, aunque dentro de los límites del ejido municipal, en los márgenes de la mancha urbana de la ciudad a mediados del siglo XX (Figura N° 3).
Respecto al área del barrio Belgrano, comenzó a ocuparse a partir de la década de 1940 y, desde sus primeros años, se constituyó en lugar de instalación de población inmigrante proveniente de Chile. Para el año 1966, Pastor y Bonilla describen al sector como característico de una villa miseria -viviendas de latas y desechos-. Cinco años después, la Municipalidad formalizó la delimitación del barrio[6].
Con relación al barrio Nuestra Señora del Carmen, el área comenzó a ocuparse en la década de 1960. En sus primeros años se lo conocía como barrio Matadero o, simplemente, barrio chileno; la actividad frigorífica cercana propició el asentamiento de población. Hacia el año 1971, la Municipalidad formalizó su denominación con el nombre que tiene en la actualidad y la delimitación incorporando tierras que correspondían a reservas fiscales. A fines de la década, el asentamiento de chilenos en el lugar se acelera con la decisión del Estado municipal -en manos de militares- de reubicar a los extranjeros chilenos en este espacio de la periferia que, de hecho, era llamado “zona de emergencia”.


La vivienda como rasgo distintivo del Paisaje Cultural Urbano. Los barrios chilenos
Memoria metodológica y resultados del primer dispositivo
A partir de elementos propios del “Paisaje Urbano” (Zárate Martín, 1991) y de los rasgos culturales cuya expresión fue registrada en diversos soportes, la caracterización de los barrios Belgrano y Nuestra Señora del Carmen ha habilitado su consideración como Paisajes Culturales distintivos en el ámbito de la ciudad (Ampuero et al, 2012, p.177).
Como resultado del primer dispositivo de trabajo de campo, a partir de la observación directa, la documentación fotográfica y la confección de fichas (Figura N° 4), se realizó el relevamiento de las viviendas que presentan características arquitectónicas propias de la Patagonia chilena ubicadas en los barrios mencionados, con el fin de cuantificar, analizar su distribución actual, estado y relevancia que tienen para la conformación de la identidad territorial de los barrios chilenos en la ciudad de Río Gallegos:
Respecto a las características generales, se observa que en las viviendas construidas por la inmigración chilena predomina en el uso de madera y chapa, igual que las viviendas construidas en la Patagonia chilena, principalmente por la disponibilidad de madera en estado natural en la región y por las características naturales relacionadas con el clima -principalmente bajas temperaturas y presencia de nieve en invierno, fuertes vientos en primavera y verano-. En Río Gallegos, a pesar de no contar con la materia prima de manera tan accesible, pero si las características climáticas semejantes, se hizo uso de la madera y la chapa. En el momento de la llegada de los migrantes chilenos, se carecía de calefacción a gas natural y se utilizaba carbón, por lo que era necesario conservar el calor, de esta forma se entiende que las viviendas son bajas (Ampuero et al, 2020. p. 49).

El relevamiento permitió distinguir a las viviendas destacando su valor histórico, urbano, cultural, estético y, en cierta medida, dando a conocer la importancia de su conservación para su valoración por la comunidad en su totalidad. El paisaje urbano distintivo de los barrios Belgrano y Nuestra Señora del Carmen se constituye como testimonio de la cultura del grupo migratorio que conformó estos espacios, reflejado en su edificación.
En términos comparativos, se logró establecer que el barrio Nuestra Señora del Carmen no presenta grandes transformaciones espaciales, como sí ocurre en el caso del barrio Belgrano; en éste último gran parte en las alteraciones de orden arquitectónico fueron ocasionadas por los planes de viviendas estatales, la modificación de las fachadas de las viviendas en tránsito hacia la construcción en mampostería, y por el recambio migratorio ocurrido en el mismo a partir del asentamiento de inmigrantes de otras de provincias del país y otros países limítrofes (Ampuero et al, 2012. p.176).
En efecto, se puede indicar que las viviendas ubicadas en el barrio Belgrano presentan modificaciones de configuración y estilo con relación a las primeras viviendas que respondían a estas características típicas ya señaladas. Distinta es la situación de las viviendas del Barrio Nuestra Señora del Carmen donde se conservan una gran cantidad de viviendas en sus construcciones originales, algunas incluso producto de la reubicación desde el Barrio Belgrano[7].
En el barrio Belgrano, se relevaron un total de 222 viviendas. Los materiales de construcción más utilizados son la chapa y la madera. Generalmente,
Son viviendas unifamiliares que presentan paredes con estructura en madera y cubierta externa en chapa, con bases de hierro y hormigón, aunque aún se observan algunas viviendas cuyas bases son de madera. Los techos de las casas son de chapa a dos aguas. Las ventanas con marco de madera predominan en las viviendas más antiguas. Se encuentran viviendas de una y dos plantas. La altura entre el piso y el extremo del techo de las viviendas de una planta no supera los 2,40 m. En el exterior de las viviendas se puede observar la presencia de flores, árboles, arbustos, césped y cercos de madera o rejas de colores llamativos (Ampuero et al, 2012. p. 174).
En algunos lotes es posible visualizar hasta dos viviendas en un lote. Las viviendas en el barrio Belgrano, han pasado por una transformación en su arquitectura y edificación, observándose viviendas de más de dos plantas y que han cambiado los materiales de construcción (Fgura N°5). Se ha reemplazado la estructura de madera por una de mampostería. Muchas viviendas con fachada caracterizada como propia de la migración chilena, han sido ampliadas y reemplazadas por los materiales antes mencionados, pero no han alterado las tonalidades vivas en el exterior. Los cercos de madera en el exterior de las viviendas han sido reemplazados por las rejas o grandes portones. Las dimensiones en las edificaciones han variado y, actualmente, se encuentran viviendas que ocupan casi la totalidad del lote. Por otra parte, puede observarse que en las viviendas más cercanas al área central de la ciudad, las transformaciones en las edificaciones responden a estilos más modernos y complejos, con lo cual se rompe la simplicidad de forma con casas que muestran, por ejemplo, desniveles en el techo.
Por otro lado, en el barrio Nuestra Señora del Carmen, se relevaron 152 viviendas. Las mismas poseen, en su mayoría, una estructura de madera y chapa, con bases en hierro y hormigón, aunque es posible encontrarlas con base de madera, las ventanas son del mismo material. Este barrio, ha sufrido menos modificaciones en la arquitectura y edificaciones que el barrio Belgrano (Figura N° 6). Se encuentran viviendas que han reemplazado el material de construcción a mampostería y rejas metálicas (Figura N° 7). Puede observarse que al ampliar las casas hacia el frente, se han incluido locales destinados a kioscos, almacenes, tiendas, pero que conservan su fachada de residencia. Muchos comercios ofrecen a la venta productos de origen chileno y las casas de comida, platos típicos de Chile. Todavía pueden observarse lotes que conservan un amplio patio en el fondo. Los árboles de importante porte pueden observarse en varias cuadras del barrio, formando parte del mejoramiento de las viviendas (Ampuero et al, 2012, p. 173).
En los lotes se encuentran, tal como en el barrio Belgrano, árboles, arbustos, jardines con flores, cercados de madera pintados de colores llamativos.



La vivienda y las configuraciones identitarias. Relato de vida de un inmigrante
Memoria metodológica y resultados del segundo dispositivo
Por otra parte, se ha abordado el proceso de inmigración chilena a partir de entrevistas semiestructuradas inspiradas en el método biográfico -desde la perspectiva de los relatos de vida- con la finalidad de incorporar al estudio la experiencia de los sujetos y procurar comprender el sentido que otorgan al proceso migratorio; sin desentender la potencialidad reconstructiva que nos ofrecieron los testimonios sobre el impacto de los procesos en la cotidianeidad de los sujetos, el dispositivo se orientó explorar el camino hacia la construcción de significados que subyace a los relatos.
Se determinó una muestra no probabilística intencional (Hernández Sampieri et al, 2010) de inmigrantes a entrevistar organizada en torno a dos variables: a) Tiempo de residencia en Río Gallegos y b) Género; el carácter del estudio eximió de pretender un punto de saturación de muestreo. De este modo, se realizaron 12 entrevistas con registro de audio y, en algunos casos, fotográfico.
Al momento de definir el guion organizador para los encuentros con los entrevistados se incluyó, junto a las categorías referidas a la historia migratoria (personal y familiar), las trayectorias laborales, redes migratorias -entre otras- y, las referidas específicamente a la trayectoria residencial y de acceso a la vivienda que habitan; este guion tuvo una intención meramente organizadora, previendo la posible emergencia de nuevas categorías (temáticas) en terreno.
Considerando los alcances de este artículo, se seleccionó el relato del inmigrante AAC[8] -desde su salida de la Isla de Chiloé, sus años en Punta Arenas, hasta instalarse definitivamente en Río Gallegos- con el fin de analizar su trayectoria migratoria, indagar en los múltiples sentidos que la inmigración y asentamiento en Río Gallegos implicaron para él y toda su familia, y los nuevos vínculos que construyó en el espacio.
Como el resto de las entrevistas, se acordó la realización del encuentro en la vivienda del entrevistado (Figura 8). En el horario convenido, AAC -de 92 años- esperó “preparado para la ocasión”, indicándose la importancia asignada a la situación de entrevista y la temática a abordar[9] y una tradición de atención a “las visitas” sin mayores lujos pero con mucho detalle: con vestimenta formal, habiendo dispuesto del espacio de recepción de visitas en la casa, siempre atento a ofrecer bebida caliente o garantizar la comodidad de los entrevistadores. En atención a la edad de AAC, sugirió ser acompañado por una de sus hijas quien, en ocasiones, acotaba algunos detalles.

AAC, es oriundo del sector rural de Quilquico cercano a la ciudad de Castro, provincia de Chiloé, X Región de Los Lagos[10], Chile; como hijo menor de varios hermanos fue quien, inicialmente, se quedó cuidando y acompañando a sus padres mientras todos sus demás hermanos y hermanas habían migrado a la Patagonia chilena y argentina.
Inició su relato contando que trabajó junto a su madre “en el campo” desde muy chico, y que sus tres hermanos mayores se fueron de Chiloé con anterioridad -algunos de ellos consiguiendo trabajo en Argentina; que, al fallecer su papá, su hermana desde Punta Arenas “los mandó a llamar”; es así que, ya con 21 años decidió radicarse con su madre a esa ciudad en la región de Magallanes y, desde allí, comenzó a trasladarse en temporada hacia la Patagonia argentina donde tenía otra hermana casada -quien lo alojaba- y la remuneración por trabajo era sustancialmente mejor que en Chile: “allá no es como acá, hay mucha injusticia, con el sueldo mínimo hacen trabajar a la gente a reventar”[11].
AAC se extiende comentando actividades de diversa índole que realizaba cuando retornaba a Punta Arenas “a ver a su madre”, pero sólo hace referencia a sus actividades laborales cuando refiere a sus temporadas como carpintero en una empresa de construcción (estancias, vías de YCF). El tiempo que permanecía en Chile AAC no trabajaba porque “había poco trabajo y pagaban muy mal”.
Pasados unos años, AAC conformó su propia familia en Punta Arenas, se casó y vivió en el Barrio 18 durante unos años en los que trabajó en una tintorería. Si bien contaba con una hermana en Río Gallegos, Chile significaba la continuidad de una historia familiar y el compartir tiempo con su familia, mientras la consideración de Gallegos, por el momento, se reducía a la posibilidad de mejores ingresos económicos.
Es así que, cuando la situación económica y política se resiente en Chile a partir de las políticas implementadas por la dictadura militar (1973), AAC tomó la decisión de volver a trabajar en “la Argentina: “(Allá) a los chicos en la escuela les pedían uniforme (...) no me daba para comprar el uniforme y mantenerlo (...) le dejé (a su esposa) una cuenta abierta en un almacén que después se pagaba cuando yo enviaba plata”; sin embargo, luego de unos meses, a pedido de su esposa se trasladó definitivamente -junto a su grupo familiar primario- a Río Gallegos.
A partir de este punto de su relato de vida, la centralidad de él se organiza alrededor del tema de la vivienda. La identificación de la vivienda como espacio de refugio/seguridad, comodidad y escenario de las dinámicas familiares adquiere un sentido muy distinto al de alojamiento temporal que construyó como migrante golondrina.
Durante los primeros meses en Río Gallegos, y ante la negativa de brindarles alquiler por la cantidad de hijos del matrimonio, AAC y su núcleo familiar se instalaron en una “piecita” muy precaria fuera de la casa de su hermana en la que, hasta entonces, recibía pensionistas: “(...) era una casita toda mal hecha (...) a donde cocinábamos era un galponcito donde se lavaba la ropa de los pensionistas (...) ahí teníamos nuestra estufita (...) estaba en la calle Maipú en el barrio Belgrano viejo (...)”.
Después de un tiempo, AAC indicó que logró construir una casita en la calle Alvear -también en el barrio Belgrano-, pero como sus documentos eran chilenos no les daban luz, ni les daban agua -que buscaban en una cañilla en la calle-, y se calefaccionaban con leña. Finalmente, unos años después, por una política municipal, se obligó a todos los ocupantes de esas viviendas precarias a trasladarse a los nuevos loteos municipales ubicados en el margen sudoeste del barrio: “cuando nos vinimos acá era todo campo, todo mata negra”.
Con un camión, trasladaron la vivienda de material ligero (chapa y cartones de descarte) hacia su nueva ubicación: “llevamos nuestra casita con un trineo al nuevo lote”; allí continuó con el proceso de autoconstrucción y ampliación de la vivienda, en la que reside actualmente junto a su hija menor, y destacó uno de los indicadores que permiten arriesgar un hito en su historia asociado a la intención de continuar su vida en Río Gallegos: la venta de su vivienda y bienes en Punta Arenas, cuyo dinero utilizó para empezar a “levantar la casa”.
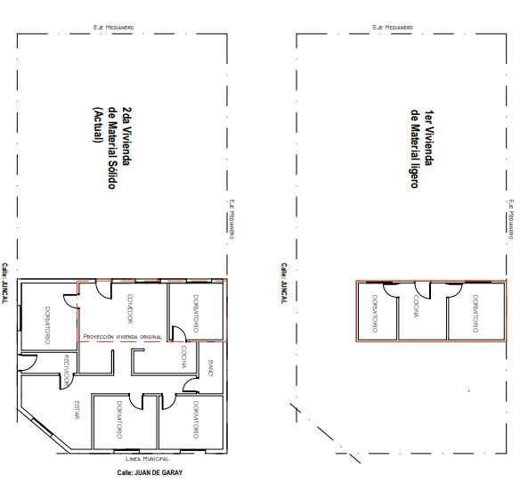
La realización de la entrevista en su propia vivienda, facilitó la rememoración respecto del proceso de construcción, desde una casita chiquita con techo a dos aguas hasta su disposición actual; logró indicar etapas de ampliación y facilitó un croquis que encargó a un familiar (Figura 9), invitando a los entrevistadores a recorrer los ambientes y el patio.

El relato del entrevistado y la posibilidad de observación directa por parte de los entrevistadores permitió acceder a otros elementos que permiten caracterizar la vivienda, como el color de las habitaciones, sus dimensiones y la forma en que los espacios se articulan (Figura 10); en breve:
- Sistema autoconstrucción, con ayuda de la familia y posibilitado por sus conocimientos previos de carpintería básica, así como los nuevos saberes de albañilería adquiridos en sus trabajos; la hija -presente-, rememora cómo se fueron agregando nuevos espacios a la vivienda.
- Planta rectangular con techo a dos aguas. A diferencia de otras viviendas de migrantes chilenos, inmediatamente ubicados en un terreno adjudicado AAC comienza a construir en material de hormigón.
- Inicialmente se construyó un espacio pequeño, al que fueron sumando nuevas habitaciones.
- Uso de materiales de construcción de descarte (recortes de chapas, restos de maderas, etc.) que se complementan con nuevos.
- Espacios reducidos, tanto en superficie como altura. Todas las paredes están pintadas de colores vivos.
- Cuenta con un patio donde plantaron árboles frutales.

AAC destacó en su relato, con orgullo, que cuando su vivienda fue lo suficientemente amplia, pudo replicar la asistencia a otros chilenos que migraban a Río Gallegos; en efecto, destinó una parte de ella para albergar a una nueva familia procedente de Chile, familiares de la esposa; no sólo se replican los principios de solidaridad, sino también expone el alcance de las redes familiares no sólo para establecer las ‘llamadas’, sino también para otorgar ‘albergue’ en la etapa inicial de llegada.
Elegir Argentina y Río Gallegos como lugar para quedarse y tener un futuro mejor para toda la familia quedó manifiesto en la autoconstrucción de la casa en ‘material’ (en etapas y cómo se podía, según la situación económica) y, en haber plantado árboles frutales en su espacio[12] (Figura N° 11).

Por otro lado, en algunos pasajes de su relato, el entrevistado reconoció que junto a su grupo familiar lograron mantener ciertas costumbres gastronómicas típicas de su lugar de origen, muchas veces facilitada o imposibilitada por el acceso a ciertos productos, como por ejemplo, los mariscos con cáscara para el curanto o, poder comprar empanadas y/o milcaos. En este sentido, la instalación de su vivienda en un barrio donde se ubicaron otros compatriotas, facilita el proceso de adaptación: por ejemplo, mencionaba que actualmente puede comprar empanadas chilenas, milcaos y sopaipillas a sus vecinas Quinchamán[13].
Asimismo, a partir del relato que realizó AAC, podemos decir que, en el espacio doméstico, se reproducen las pautas culturales aprendidas en su lugar de origen. La gran mayoría de familias chilotas que viven en el campo, no sólo se dedican a las tareas agrícolas y ganaderas, sino que además desarrollan las habilidades y conocimientos necesarios para la subsistencia familiar. Culturalmente, los jóvenes desde temprana edad van aprendiendo las tareas y participan de la construcción y refacción en madera de estructuras sencillas como gallineros y cercados, para luego poder colaborar en la construcción de galpones y vivienda familiar.
Consideraciones finales
La adopción, para el presente artículo, de un abordaje metodológico que pretende potenciar las capacidades descriptoras de un enfoque cuantitativo con el alcance comprensivo que involucra un acercamiento de corte cualitativo, lejos de entenderse como etapas ajenas entre sí, se organiza como fases reconfiguradas de acercamiento al mismo objeto.
De este modo, la observación directa en extensión realizada en ocasión del relevamiento para la conformación del inventario - acceso a las expresiones públicas del fenómeno - fue integrada, junto a la impregnación realizada mediante la lectura de bibliografía específica, en el acercamiento al relato que efectuó el inmigrante entrevistado - acceso a las expresiones privadas del fenómeno.
Las formas de habitar el espacio, en su momento en los márgenes de la ciudad -por decisión de las autoridades municipales- en un barrio habitado por coterráneos y cuyas viviendas comparten características muy similares, invitan a varias líneas de indagación asociadas a la segregación social y el tratamiento que el Estado ha brindado a la cuestión migratoria -lejos de la letra y los principios de la Constitución Nacional.
Como otras producciones de los autores, detrás del reconocimiento que este proceso migratorio particular tiene en la constitución de un Paisaje Cultural particular y distintivo en la ciudad de Río Gallegos, se encuentra la intención de procurar el reconocimiento de los espacios/sujetos invisibilidades por la persistencia del relato oficial sobre la identidad riogalleguense -y otros puertos del territorio santacruceño- organizado en torno a la figura del Pionero ganadero -inmigrante europeo-.
Bibliografía
Ampuero, C., Norambuena, M., & Segovia, M. (2012). La impronta de la migración chilena durante el Siglo XX en el paisaje urbano de la ciudad de Río Gallegos. Los barrios Belgrano y Nuestra Señora del Carmen como paisaje cultural urbano. En V. Navarro y S. Espinoza, Paisajes culturales: Memorias de las Jornadas de reflexión acerca de los paisajes culturales en Argentina y Chile, en especial los situados en la región Patagónica. UNPA-UMAG-ICOMOS.
Ampuero, C., Norambuena, M., Segovia, M., Cáceres, A., Melgarejo, G., & González, C. (2020). La inmigración chilena en Río Gallegos, Santa Cruz, Argentina. UNPAEdita Universidad Nacional de la Patagonia Austral.
Escolar, C. (1998). Epistemología del trabajo de campo en geografía; problemas en torno a la construcción de los datos. En Biblio 3W Revista Bibliográfica de Geografía y Ciencias Sociales, N°96. Universitat Barcelona. http://www.ub.edu/geocrit/b3w-96.htm
Hernández Sampieri, R., Fernández Collado, C., Baptista Lucio, M. (2010) Metodología de la Investigación. McGraw-Hill.
Massey, D., Arango, J., Hugo, G., Kouaouci, A., Pellegrino, A., Taylor, J. E. (1998). Mundos en movimiento: comprender la migración internacional al final del milenio. (1999) EconPapers Economics at your fingertips https://econpapers.repec.org/bookchap/oxpobooks/9780198294429.htm
Pastor, J., & Bonilla, J. (1966). Plan regulador de la ciudad de Río Gallegos. Municipalidad de Río Gallegos.
Pedone, C. (2010). Cadenas y redes migratorias: propuesta metodológica para el análisis diacrónico-temporal de los procesos migratorios. En Empiria. Revista de metodología de ciencias sociales, 0(19), 101-132. https://doi.org/10.5944/empiria.19.2010.2016
Zárate Martín, A. (1991). El espacio interior de las ciudades. Editorial Síntesis. Madrid.
Notas
Información adicional
Cita sugerida:: Norambuena, M., Segovia
Stanoss, M., Ampuero, M.I., González, C. y Ampuero, C. (2023). La vivienda como
manifestación cultural. Una aproximación al proceso de territorialización de la
inmigración chilena en Río Gallegos, Argentina. Párrafos Geográficos 22 (1). ISSN: 1853-9424. ISSN-e: 1666-5783.

