Investigación
Recepción: 22 mayo 2025
Corregido: 06 septiembre 2025
Publicación: 31 octubre 2025

Resumen: Durante la primera mitad del siglo XX, el aumento de inversiones en infraestructura hidráulica para el valle de Culiacán provocó un acelerado crecimiento poblacional. Numerosos habitantes de las comunidades rurales emigraron hacia la ciudad, desencadenando una alta demanda de vivienda. Dicha necesidad provocó la aparición de las primeras colonias populares en la década de los cuarenta, ubicadas en terrenos ejidales. Este trabajo analiza la vivienda popular surgida entre 1920 y 1970, así como su impacto en el crecimiento de Culiacán. La investigación identifica a diversos actores en la conformación urbana e identitaria de la ciudad, como la producción y adquisición de la vivienda, la denuncia de los solares baldíos, el apogeo de construcción de vivienda popular, además de algunas consideraciones sobre su tipología. En el proceso de construcción de una vivienda es importante considerar las diversas maneras de comprar un terreno, así como los mecanismos para su construcción, ya que estos corresponderán con la calidad, la funcionalidad y las características arquitectónicas. Del total de viviendas construidas entre 1940 a 1980, aproximadamente el 80 % correspondió a la vivienda popular. La denuncia de solares baldíos fue una fórmula utilizada por el Ayuntamiento para ayudar a familias de bajos recursos económicos a tener un lugar para vivir.
Palabras clave: vivienda popular, configuración urbana, colonias populares, Culiacán.
Abstract: During the first half of the 20th century, increased investment in water infrastructure for the Culiacan Valley led to accelerated population growth. Many residents of rural communities migrated to the city, triggering a high demand for housing. This need led to the emergence of the first popular neighborhoods in the 1940s, located irregularly on communal lands. This paper proposes an analysis of the popular housing that emerged between 1920 and 1970, as well as its impact on the growth of Culiacan. The essay also addresses topics such as home acquisition, the denunciation of vacant lots, the growth of popular housing, and finally, some typological considerations of popular housing that, over time, have given the city its identity. In the process of building a home, it is important to consider the various ways of purchasing land, as well as the mechanisms for its construction, as these will correspond to the quality, functionality, and architectural characteristics of the buildings. During this period, approximately 80 % of the total housing built was affordable housing. The City Council used the reporting of vacant lots to help low-income families find a place to live.
Keywords: popular housing, urban configuration, popular neighborhoods, Culiacan.
Introducción
Esta investigación plantea analizar la vivienda popular en Culiacán surgida de 1920 a 1970, con el objetivo de definir su papel en el crecimiento de la ciudad moderna. El estudio se delimita entre el periodo posrevolucionario y la formación de la ciudad funcionalista. En la década de los setenta, la construcción masiva de la vivienda social en México (INFONAVIT y FOVISSSTE)3 marcó el comienzo de una nueva fase para el desarrollo habitacional.
Culiacán es la capital del estado de Sinaloa y se encuentra en el noroeste de México. De ser una importante región minera durante la época novohispana, inició a finales del siglo XIX un proceso de cambio para convertirse en una región agrícola, primero, impulsada por los grandes hacendados locales y, después, en la época posrevolucionaria por el gobierno federal. Lo anterior logró crear a mediados del siglo XX una importante zona de producción agrícola para el consumo nacional y de exportación, principalmente a Estados Unidos.
Esta transformación provocó un acelerado crecimiento poblacional y urbano en las principales ciudades de Sinaloa. De 1940 a 1970, Culiacán pasó de tener 22 025 a 167 956 habitantes (INEGI, 2020). Fue entonces cuando la necesidad de vivienda se convirtió en un problema social. Las colonias populares surgieron en terrenos ejidales, con todos los problemas que este fenómeno representa. Para muchas familias de bajos recursos, la posesión de un terreno donde vivir representaba el logro más importante.
Capel (2013) opina que, históricamente, la población ha adquirido vivienda de diversas maneras que han cambiado con el paso del tiempo. Sin embargo,
han coexistido, por lo menos dos tipos: la de los que tienen recursos y las de quienes no los poseen. Por un lado, los palacios y las casas de los ricos, espaciosas, bien construidas y lujosamente amuebladas. Por otro, la vivienda de los pobres, de materiales endebles, construcción somera y mobiliario elemental y reducido. (p. 275)
En esta investigación reconocemos a la vivienda popular como pieza fundamental para la construcción de la ciudad del siglo XX y demostramos, además, cómo las condiciones de pobreza material y de hacinamiento de la mayoría de las familias de Culiacán dieron origen a una arquitectura que otorgó identidad a la cultura material del siglo XXI.
Metodología
Para la reconstrucción de los hechos urbanos de la ciudad de Culiacán, este ensayo se apoyó en trabajo de campo, investigación documental y en la consulta de diversas fuentes de información: censos del INEGI de 1921 a 1980, Actas de Cabildo del Archivo Histórico Municipal de Culiacán de 1920 a 1980 (AHMC), el Periódico Oficial del Estado de Sinaloa en el Archivo Histórico del Congreso del Estado de Sinaloa (AHCES) y el Archivo General de Notarías del Estado de Sinaloa (AGNES).
Instituciones como el Colegio de México, la UAM (en sus dos sedes) y la UNAM destacan en publicaciones sobre la reconstrucción patrimonial y urbana, un método fenomenológico que nos permite comprender las unidades de observación como un complejo donde cada una de las partes tiene su papel protagónico en la conformación de la identidad urbana, además de aspectos de la sociología, como la historia, la arquitectura y el tema patrimonial, al igual que estudios precisos de cartografía, geografía, estadística de población y de políticas de gobierno. Otros temas sobresalientes son los lenguajes arquitectónicos, las transformaciones a partir de la arquitectura moderna, los aspectos geográficos y estadísticos, el crecimiento poblacional y su impacto en la construcción masiva de la vivienda social, las diferentes formas de financiamiento y, en menor medida, la arquitectura vernácula. Por su enorme crecimiento, la mayoría de los trabajos abordan el caso de la Ciudad de México, a la luz de investigadores como Gustavo Garza, Jaime Sobrino, Martha Schteingart, Manuel Perló Cohen, René Coulomb, Beatriz García Peralta Nieto, Jan Bazant, José Luis Lezama, Jorge Andrade y Emilio Duhau. De estos autores se retoman algunas posturas teóricas y métodos que permitan un análisis para abordar el fenómeno de la vivienda popular. Así pues, este material ha ayudado a entender las diferencias y semejanzas de la vivienda popular en las diferentes regiones, lo que enriqueció la metodología de estudio.
Junto con el análisis de los documentos ya mencionados, se llevó a cabo un trabajo de campo en colonias populares fundadas hasta la década de los ochenta del siglo XX, con la finalidad de revisar las cualidades arquitectónicas que se conformaron durante este periodo. Se cruzó y comparó la información obtenida, lo que permitió experimentar con una metodología que intenta adaptarse a las condiciones particulares del hábitat popular de Culiacán, la cual presenta características semejantes a las ciudades del noroeste de México. El ensayo, entonces, se organizó en los siguientes apartados:
-Producción y adquisición de la vivienda.
-Denuncia de solares baldíos.
-Crecimiento de la vivienda popular y su ubicación.
-La vivienda popular.
Producción y adquisición de la vivienda
A lo largo de la historia, las familias en México han tenido que resolver la necesidad de contar con una vivienda, “algo” donde habitar, aunque una proporción importante lo ha hecho en lugares insalubres y en condiciones de hacinamiento que en muchos casos se pueden considerar infrahumanas (Garza y Schteingart, 1978). Como se mencionó antes, el tema central de este trabajo es la vivienda popular en Culiacán. Sin embargo, para ubicarla dentro de un contexto amplio se decidió incorporar información sobre las viviendas residencial y social que se construyeron durante estas décadas y algunas referencias estadísticas e históricas de la Ciudad de México, para evidenciar la importancia del hábitat popular dentro de la configuración urbana de la primera mitad del siglo XX.
En las Actas de Cabildo del Ayuntamiento de Culiacán (AHMC) de 1920 a 1970 se encuentran las gestiones que realizaron las autoridades municipales para que numerosas familias de bajos recursos obtuvieran un terreno donde construir su casa. Al consultar el Archivo General de Notarías del Estado de Sinaloa (AGNES), se hallaron compras y ventas de terrenos y casas por distintos rumbos de la ciudad. Por otra parte, en el Diario de Culiacán diferentes notas informan sobre la demanda de vivienda y las invasiones para obtener un terreno. Por último, algunos decretos del Congreso del Estado establecieron fundos legales para la creación de nuevos asentamientos populares.
Estas fuentes proporcionan los argumentos para plantear que en Culiacán predominaron seis formas de producir y obtener una vivienda. Lo anterior no implica que pudieran haber existido otras, como una herencia o una rifa, por citar algunos ejemplos de excepción. Los métodos de adquisición de la vivienda son importantes en este estudio, ya que juegan un rol categórico para la producción y las futuras transformaciones de las viviendas, junto con la conformación espacial de la ciudad. Exponemos las principales formas de adquisición que hemos destacado:
1. Los que tenían recursos para comprar o construir una nueva casa. En este caso se encontraba un reducido porcentaje de la población.
2. Los que alquilaban una casa. Para mediados del siglo XX representaban un alto porcentaje de la población, pero muchos de ellos en la primera oportunidad se hicieron de un solar en las colonias populares que estaban surgiendo.
3. A los que el Ayuntamiento les vendió un terreno a bajo costo por medio de la denuncia de solares baldíos. Por su importancia y la información obtenida de las Actas de Cabildo se comentará más adelante con mayor detalle.
4. Los que invadieron terrenos ejidales o particulares. Fue la práctica más utilizada. Se estima que el 80 % de las viviendas construidas entre 1940 y 1970 fueron en estos terrenos.
5. Los que obtuvieron crédito para una vivienda por medio de la Dirección de Pensiones Civiles del Gobierno del Estado. En el Archivo General de Notarías del Estado de Sinaloa (AGNES) se encontraron diversas escrituras donde trabajadores construyeron su casa en la colonia Guadalupe a través de estos créditos. Además, esta dirección edificó en la década de los cincuenta tres fraccionamientos para los trabajadores del estado, de entre 90 y 100 viviendas cada uno, siendo las primeras de este tipo en Culiacán.
6. Algunas Actas de Cabildo hacen referencia a casas construidas durante los años cuarenta y cincuenta con recursos del Gobierno del Estado y del Ayuntamiento en colonias populares, puestas a la venta para familias de bajos recursos. Se cuenta con poca información al respecto: diez casas en la colonia Tierra Blanca y cinco en la colonia Morelos (hoy Los Pinos). Posiblemente algunas más en otros sectores fueron el resultado de algunos programas de fomento a la vivienda popular.
Estas formas de producir la vivienda coinciden con el resultado de varias investigaciones (Luna, 2024; COPEVI, 1977; Perló, 1979). Sánchez (2005) menciona que durante la época posrevolucionaria se establecieron las bases de la producción de vivienda en México, originando “cuatro grandes formas o sistemas de vivienda. El primero es la producción privada de vivienda; el segundo, el sistema de vivienda arrendada; el tercero, el sistema de vivienda estatal; y el cuarto, los asentamientos conocidos como ‘colonias proletarias’” (p. 6). Para nuestro caso, el sistema de vivienda estatal puede incluir la denuncia de solares baldíos y las casas construidas en colonias populares por parte del Estado y el Ayuntamiento.
Cubrir la necesidad de vivienda para cada familia representa uno de los mayores problemas urbanos, debido al elevado costo que esto significa. Hasta la década de los años sesenta el Gobierno del Estado mantuvo distancia ante esta necesidad y dejó en manos de la iniciativa privada su construcción y financiamiento. También la forma de obtener un terreno y la producción de la vivienda ha tenido un fuerte impacto para la configuración urbana de la ciudad y la calidad de vida de las familias. Los dos casos que más repercutieron en Culiacán fueron los de la producción privada y las invasiones.
A partir de los años cuarenta, los que tenían recursos para comprar o construir una vivienda contaron con los beneficios funcionales (uso de préstamos bancarios o ahorros personales) y estéticos (contratación de arquitectos) que ofrecía el funcionalismo mexicano en las primeras colonias residenciales de la ciudad, ubicadas en las mejores zonas, en las partes altas y en las orillas del río. Esto representaba, como en el resto del país, la modernización de Culiacán. Antes de esta década, las familias con mayores recursos habitaban en viejas casonas del centro de la ciudad.
Por otro lado, está el fenómeno de las invasiones. En Culiacán, un ejemplo representativo es el poblado El Vallado, que había sido propiedad de una rica familia de terratenientes desde la época porfirista y convertida en ejido en el periodo posrevolucionario. Su invasión inició, aproximadamente, en 1938. Se puede confirmar que en 1941 el Ayuntamiento otorgó un permiso de servicios de autotransportes con la ruta hacia el centro de la ciudad y la Lomita, y viceversa (AHMC, Acta de Cabildo 28, 16 de julio de 1941). En un decreto municipal de enero de 1950, El Vallado deja de ser comisaría municipal y se convierte en la colonia Ejidal (AHMC, Acta de Cabildo 2, 19 de enero de 1950), que a la postre originó dos colonias populares: Vallado y Ejidal (hoy fraccionamiento Los Pinos). Estas acciones fueron impulsadas por los mismos ejidatarios, y así continuaron por años. Las tierras de este ejido, como las de todos los ejidos que rodeaban la ciudad, eran utilizadas de agostadero. Para los 25 ejidatarios que formaban El Vallado, era más conveniente que sus 124 hectáreas cambiaran de suelo rústico a suelo urbano. Fue hasta 1956 cuando el gobernador del estado, mediante un oficio del jefe del Departamento Agrario, comunica a la Secretaría de Bienes Nacionales la expropiación de terrenos a fin de que se destinaran para la construcción de una colonia popular (AHMC, Acta de Cabildo 11, 26 de abril 1956). Este nudo gordiano, como llama Salazar (2019) a la legalización de las tierras ejidales para convertirlas en asentamiento popular antes de 1992, se extendió durante muchos años.
En 1958 acordaron la venta de los terrenos a 1 peso el m². El total fue de 1 243 595 pesos. Esta cantidad debía depositarse previamente al fallo de expropiación presidencial. A la Banca Nacional de Crédito Ejidal, la comuna solicitó un préstamo por 1 305 774.75 pesos para el pago de la indemnización y un 5 % para los gastos administrativos y legales. Ese mismo año, el Ayuntamiento se encargó de fraccionar, aproximadamente, 2000 lotes (AHMC, Acta de Cabildo 10, 24 de abril 1958). Mientras tanto, los ejidatarios todavía a finales de la década de los sesenta exigían el pago de la indemnización.

Denuncia de solares baldíos
Durante los años treinta y cuarenta, el Ayuntamiento fraccionó hacia el oriente y poniente, en la periferia urbana de la ciudad. En algunos de esos terrenos existían lotes que no fueron ocupados o habían sido abandonados, donde incluyeron también lotes de algunas manzanas de la colonia Almada (fundada en 1932), que fueron donados al Ayuntamiento. Fue en esas zonas donde se utilizó la figura legal de la denuncia de solares baldíos. Para las autoridades municipales, un solar baldío era un terreno urbano que estaba sin edificar y como no poseía dueño formaba parte de los bienes del Estado, ya que se encontraba dentro de los límites territoriales. Debido a la “carencia de casas habitación” se recurrió a esta medida para vender terrenos a familias de escasos recursos económicos (AHMC, Acta de Cabildo 22, 4 de junio de 1941).
Para la obtención de uno de estos lotes, el interesado entregaba una solicitud especificando la ubicación del solar baldío, se turnaba a la Comisión de Mejoras Materiales para su investigación y, si el terreno no tenía propietario, se procedía a realizar el trámite, que consistía en la publicación del denuncio en la tabla de anuncios del Ayuntamiento, así como en La Opinión o en el Periódico Oficial, donde se establecía su ubicación y colindancias. De esta manera se cumplía con el artículo 5 de la Ley sobre la adjudicación de Solares Baldíos. En caso de que no se presentaran opositores al denuncio se hacia el levantamiento del terreno y su asignación (AHMC).
Entre marzo de 1942 y noviembre de 1950, el Ayuntamiento otorgó, aproximadamente, 220 solares baldíos. La superficie de los terrenos variaba entre 500 y 700 m² y el precio entre 0.10 y 0.50 centavos por metro, dependiendo de su ubicación y sus condiciones topográficas (Amaral, 2022). El objetivo de la denuncia de solares era que las familias humildes contaran con un espacio donde construir su casa, su patrimonio familiar. Se especificaba que a los beneficiarios no se les permitiría vender su terreno en los próximos diez años, salvo con la autorización del Ayuntamiento, por un asunto urgente o lo hipotecaran para adquirir un préstamo para construir su casa.
A partir de esta información, podemos ubicar los lugares de la ciudad que se poblaron durante la década de los cuarenta (Figura 1). La mayoría fueron en el sector poniente de la colonia Almada: las manzanas que se encontraban entre las avenidas Nicolás Bravo y Guadalupe Victoria y bulevar Madero y la calle San Salvador (hoy Aguilar Barraza). En el sector oriente: las manzanas cercanas a la Caseta Cuatro, entre las avenidas Aquiles Serdán y Aranjuez (hoy Carranza) y entre la calle Escobedo y bulevar Leyva Solano.
Para las familias de escasos recursos económicos este fue el mecanismo para adquirir un solar y construir sus viviendas. En las Actas de Cabildo de noviembre de 1950 encontramos las últimas solicitudes de denuncias de solares baldíos. Por las condiciones económicas de los habitantes de estas manzanas, la primera construcción que realizaron sobre su “propio” predio tenía las características de una vivienda vernácula. Pero más que vernácula rural, la vivienda tomó el formato de vivienda suburbana: en su mayoría construidas con lámina, desechos industriales y materiales reciclados, convertidas en vivienda popular en la medida que cada familia disponía de recursos para edificar su hogar con materiales de construcción de mayor duración. Es importante mencionar que, en estas versiones transformadas de la vivienda, se contaba con la autogestión o autoconstrucción, que con el tiempo intentará mimetizar algunos estilos del momento.
Según Lefebvre, la expansión de las ciudades implicó una degradación de la arquitectura y del ambiente urbano. Impera en esta dispersión de la clase trabajadora la segregación económica, social y cultural (De Mattos y Link, 2015). Este fenómeno se presentó en México y América Latina a mediados del siglo XX. Dominaba la idea de que el crecimiento cuantitativo de la economía y de las fuerzas de producción provocarían el desarrollo social. Fue una fuerza que agudizó las contradicciones urbanas y dispersó en la periferia a los grupos de campesinos desplazados del medio rural.

Crecimiento de la vivienda popular y su ubicación
Para mostrar con mayor claridad la importancia de la vivienda popular en el crecimiento urbano de Culiacán se delimitó el número que surgió cada diez años, así como el de la vivienda residencial. Las fuentes de información son los datos de los Censos de Población de 1921 a 1980 y el reconocimiento oficial de cada una de las colonias populares por parte del Ayuntamiento, recuperado de las Actas de Cabildo en el AHMC. Se cruzó esta información para encontrar los sectores de la ciudad donde se construyeron estas viviendas.
Algunos investigadores (Pineda, 2016; Turner, 2018; Andrade, 2019) aseguran que la mayoría de las construcciones en los sectores populares se hizo de manera irregular durante el siglo XX. Entre el 70 y 80 % de viviendas se construyeron sin permiso de construcción: no estaba regularizada la tenencia del suelo, se carecía de recursos económicos y la vivienda se construía en etapas. Este fenómeno ha estado en constante ascenso desde los años cuarenta. Diferentes publicaciones reconocen que solo el 10 % de la población en América Latina recibe atención profesional en sus procesos de construcción (Alfaro, 2006).

En la presentación de un programa de autoconstrucción de vivienda, el día 10 de noviembre del 2020, el secretario de Desarrollo Agrario Territorial y Urbano (SEDATU) del gobierno de México, Román Meyer Falcón, mencionó que en nuestro país dos terceras partes de los mexicanos autoproducen su vivienda (Cervantes, 2020). El fenómeno de la autoconstrucción sigue vigente y fortalece la propuesta de considerar que un alto porcentaje de las construcciones de vivienda durante nuestro periodo de estudio fue a través de este mecanismo. Para situarlo en el contexto nacional agregamos que en la Ciudad de México en 1950 el 22 % de la población vivía en alguna colonia popular y para la década de los setenta ascendió al 50 %, ocupando el 64 % del área urbana (Romero y Mesías, 2004; Perló, 1979). El surgimiento de las colonias “proletarias” es un tema complejo de analizar, debido a los diferentes factores que participaron para su creación (Duhau, 1991). Perló (1979) lo describe de la siguiente manera:
Al tiempo que se consolidaba el sistema habitacional de renta congelada en la Ciudad de México, las colonias proletarias comenzaron a brotar como hongos por todas las ciudades del país, con una fuerza tal, que tan solo en el DF bastó una década para que alcanzaran el mismo nivel cuantitativo del sistema de vivienda arrendado y, en las siguientes, lo rebasaran por completo erigiéndose en el principal asiento habitacional de la población capitalina y seguramente de la mayoría de los habitantes del país ubicados en centros urbanos. (p. 807)
En Culiacán, la primera colonia popular surgió en 1924 y para 1970 existían más de 50, casi todas de manera irregular sobre terrenos ejidales. Se estima que el 80 % de las viviendas construidas en Culiacán durante la primera mitad del siglo XX fue a través de la autoconstrucción o autogestión. Esta consideración, junto con el crecimiento poblacional, permite realizar un análisis cuantitativo de las viviendas populares que se edificaron cada diez años (Tabla 1).
Garza y Schteingart (1978) consideran que, durante la primera mitad del siglo XX en México, cada familia se componía de cinco integrantes como promedio general. También mencionan que en 1950 la población del país era de 26.4 millones de personas que habitaban en 5.3 millones de viviendas. Esto da un promedio de 5 personas por vivienda. Para 1970, este número aumentó hasta 6.1.
A partir de dicha valoración consideramos el promedio de 5 integrantes por vivienda como criterio principal para obtener una cifra aproximada del número de viviendas en cada década. Sin embargo, no es exacta, sobre todo si contemplamos que en una misma casa puede habitar más de una familia, pero permite acercarse a un rango cercano, con excepción del censo de 1960, el cual incluye el número de viviendas.

Para finales del siglo XIX, Culiacán tenía una población aproximada de 9000 habitantes. La mancha urbana tenía como límite, al sur, una vereda enmontada, con casas vernáculas dispersas donde hoy se encuentra el bulevar Francisco I. Madero, y la línea del Ferrocarril Occidental de México, conocido como El Tacuarinero, servía como una barrera artificial del crecimiento. Al norte tenía como barrera natural el río Tamazula; hacia el poniente, la avenida Nicolás Bravo, igualmente con construcciones vernáculas y dispersas; al oriente el límite era la fábrica El Coloso de Rodas, donde predominaban las viviendas de los trabajadores de esa empresa (Llanes, 2002), construidas a principios de siglo en estilo tradicional simplificado, como era común en la región. Del periodo porfirista al término de la Revolución, Culiacán mantuvo, en términos generales, casi las mismas dimensiones en su mancha urbana. Su crecimiento poblacional no originó la ampliación de la ciudad.
En 1921, Culiacán contaba con 16 034 habitantes. Al considerar un promedio de 5 integrantes por familia, nos arroja un aproximado de 3207 viviendas distribuidas por los distintos rumbos (Figura 2). La ciudad había rebasado el bulevar Francisco I. Madero, llegando a las vías del Tacuarinero. Hacia el oriente, algunas manzanas más allá de la avenida Aquiles Serdán continuaban poblándose de manera lenta.

Para 1930, la población llegó a 18 202, lo que nos arroja un promedio de 3640 viviendas, un aumento de 433 viviendas respecto al censo de 1921. Gran parte de este crecimiento fue en la colonia Gabriel Leyva, la cual fue creada en 1924 (AHCES, Periódico Oficial del Estado de Sinaloa, 14 de agosto de 1924, número 97), siendo el primer desarrollo habitacional de la época posrevolucionaria. Pese a un aumento significativo, este no causó gran sobresalto al tejido urbano tradicional, pero abrió las posibilidades de rebasar la barrera del río Tamazula. A partir de entonces, el sector norte inició un crecimiento incesante hasta la actualidad (Figura 3).
En 1940 la población llegó a 22 025, con alrededor de 4405 viviendas, un aumento de 765 respecto al censo de 1930. En 1938 había iniciado la construcción de la presa Sanalona, lo que presagiaba una notable expansión de la mancha urbana para los próximos años. Durante esta tercera década se terminó por consolidar la colonia Gabriel Leyva y se convirtió en uno de los sectores más dinámicos de la ciudad. En 1932 había empezado hacia el sur, más allá de las vías del Tacuarinero, la venta de terrenos de la colonia Almada (Figura 4).
Estas dos colonias, junto con algunas manzanas del sector oriente cercanas a la Caseta Cuatro, fueron las zonas de la ciudad donde se ubicaron la mayoría de las 765 viviendas surgidas en la década de los treinta. El fraccionamiento Paseo Niños Héroes se constituyó oficialmente en 1939, pero la etapa de construcción de sus viviendas fue durante los años cuarenta. En este lugar se construyeron las primeras viviendas del funcionalismo mexicano y algunas con estilo neocolonial (Figura 5), puesto que en los primeros años de la década de los cuarenta aún prevalecía el espíritu nacionalista impulsado por los gobiernos posrevolucionarios.

Para el censo de 1950, la población llegó a 48 963, con un aproximado de 9792 viviendas, un aumento de 5387 respecto al anterior. Esta cantidad prácticamente duplicó la mancha urbana y el número de casas. La ciudad contaba con once colonias, de las cuales tres eran residenciales: fraccionamiento Paseo Niños Héroes, Guadalupe y Lomas de Culiacán; y ocho colonias populares: Gabriel Leyva, Almada, Industrial Bravo, Popular, Tierra Blanca, El Vallado, Ejidal y El Palmito (Figura 6).
Esta década fue significativa, tanto para el crecimiento como para la fragmentación urbana. De tener tres colonias en 1940 pasó a once en 1950. Además, se duplicaron tanto la población como el número de viviendas. Más del 80 % de las 5387 viviendas que surgieron en este periodo fueron edificadas en las colonias populares.
En el VIII Censo General de Población de 1960 Culiacán llegó a 84 024 habitantes y existían 17 044 viviendas, es decir, 7252 más que en 1950. En esta década se construyeron doce colonias, dos de ellas residenciales: la Chapultepec y las Quintas. El resto fueron colonias populares: Miguel Hidalgo, Guadalupe Victoria, Salvador Alvarado, Francisco Villa, Mazatlán, Rosales, Humaya, Las Vegas, Morelos, Burócrata y Miguel Alemán (Figura 7). En el sector oriente continuó el auge constructivo de los años cincuenta, impulsado por la pavimentación del bulevar Francisco I. Madero en 1954, el cual se convirtió en la Carretera Internacional México-Nogales al cruzar por la ciudad.

En el mismo censo encontramos algunos datos relevantes que nos permiten conocer un poco más sobre las condiciones de las viviendas de mediados de siglo. De las 17 044, solo 7024 estaban habitadas por sus propietarios. El resto (10 022) podríamos suponer que se destinaban para alquiler, como era común hasta los años sesenta en México y muchos otros países (Garza y Schteingart, 1978). Por ejemplo, en el entonces Distrito Federal, de 1942 a 1948, de todas las viviendas que existían más del 75 % eran de alquiler (García Peralta Nieto, 2016). En Culiacán muchas familias rentaban casas en distintos lugares de la ciudad, pero al no poder con los gastos que esto generaba, comenzaron a participar en la invasión de terrenos buscando con ello un patrimonio familiar (Carvajal, 2019).
Capel (2005) señala que, en el mundo occidental, desde el siglo XIX predominó la vivienda en alquiler. Fue hasta la segunda mitad del siglo XX cuando la proporción de la vivienda en propiedad empezó a aumentar, principalmente con las políticas del Estado Benefactor. En México sería hasta los años setenta cuando se incrementa la proporción de propietarios de viviendas con la creación de INFONAVIT, FOVISSSTE y la regularización de la tenencia en las colonias populares.
Otro dato relevante del censo de 1960 versa sobre las dimensiones de las viviendas. De las 17 044 viviendas que existían, 13 047 se conformaban de uno o dos cuartos, 2068 con tres cuartos y las viviendas que tenían cuatro o más eran 1929. El 77 % de las viviendas de Culiacán disponía de uno o dos cuartos (Figura 8). Esos espacios debían de servir de sala, comedor, cocina y recámara. El baño regularmente estaba ubicado al fondo del terreno, lo que dio como resultado que predominara el hacinamiento, la mala calidad de las construcciones y los pésimos o inexistentes servicios públicos.

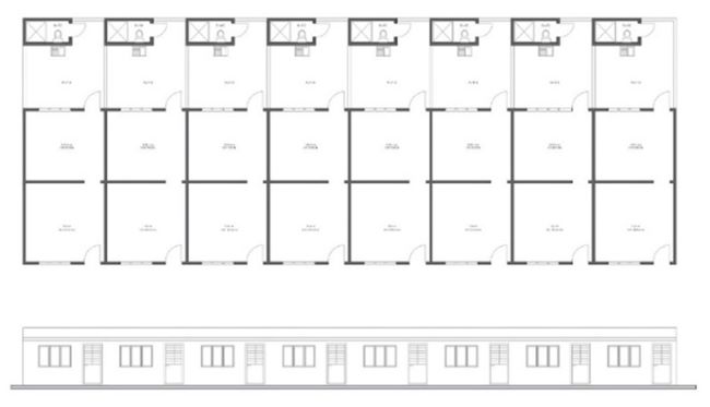
La mayoría de las viviendas, al ser de uno o dos cuartos, formaban “cuarterías” colocadas en hilera sobre el límite frontal del terreno (Figura 10). Estas no solamente se encontraban en las colonias Almada, Tierra Blanca y la zona oriente, sino que también fueron construidas en las diversas colonias populares. El 11 % de las casa que contaban con cuatro cuartos o más se ubicaba en las colonias residenciales Guadalupe, Chapultepec, Lomas de Culiacán; y en el centro de la ciudad, las colonias Gabriel Leyva, Tierra Blanca y Almada.

Para 1970, Culiacán llegó a 167 956 habitantes. Por tercera década consecutiva se duplicaron la población y las viviendas: de 17 044 que había en 1960 pasaron a 33 591 viviendas. Un aumento de 16 547, prácticamente una nueva ciudad.
La mayoría de estas 16 547 viviendas fueron construidas en las colonias populares que ya existían y en las recientes, que de nuevo se duplicaron. Fraccionamientos: Nuevo Culiacán y Lomas del Boulevard. Colonias populares: San Rafael, Sinaloa, Margarita, Melchor Ocampo, Rafael Buelna, Libertad, Díaz Ordaz, Ignacio Allende, 6 de Enero, Lombardo Toledano, Recursos Hidráulicos, Adolfo López Mateos, Aquiles Serdán, PEMEX, Independencia y Emiliano Zapata (Figura 9). Este crecimiento correspondió principalmente a la vivienda popular, donde dominó la imagen urbana en la segunda mitad del siglo XX.

Para 1980, la población casi se vuelve a duplicar: 304 825. Sucedió lo mismo con el número de viviendas, que llegó a 60 965. En esta última década surgen los fraccionamientos INFONAVIT Humaya, Balcones de Culiacán, Villa Universidad, Lomas de Guadalupe, Las Huertas, La Aurora, FOVISSSTE Chapultepec, ISSSTESIN, La Campiña, INFONAVIT Las Flores, Montebello, Bugambilias, Lomalinda, INFONAVIT Cañadas y Colinas de San Miguel, además de las colonias populares 5 de Mayo, Lázaro Cárdenas, 10 de Mayo, Ferrocarrilera y Adolfo Ruiz Cortínez (Figura 11).
En esta década, el sistema habitacional inicia una lenta transformación, ya que a través del INFONAVIT y del ISSSTESIN se construyeron siete fraccionamientos para la clase trabajadora. Asimismo, con el ascenso de la clase media, se establecieron ocho colonias residenciales, algunas de ellas en sectores privilegiados, concretamente en las partes altas con vistas hacia la ciudad. Por otra parte, se crearon los primeros fraccionamientos cerrados y, al mismo tiempo, inició el auge de una arquitectura con gran influencia e imitación de las viviendas de los Estados Unidos, ante todo de Arizona y California. Esto fue producto de diversas causas, en especial ligadas a la narcocultura, que coincidió con el apogeo de la arquitectura de la posmodernidad.

La vivienda popular
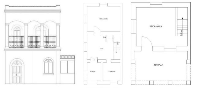
La vivienda popular forma parte de una larga tradición constructiva, la cual se transforma y se adapta en función de los cambios tecnológicos, culturales y sociales de las últimas décadas. Sin embargo, durante el siglo XX tuvo un rol dominante para la configuración de las ciudades mexicanas modernas. Entre las viviendas construidas hasta 1940 encontramos diversas vertientes. Además de las que ya se mencionaron, están las que continuaron con el mismo lenguaje del siglo XIX y otras que en los años treinta y cuarenta asumieron un lenguaje nacionalista (Figura 12).
Las ciudades mexicanas de mediados del siglo XX proyectaban diversas caras. Por un lado, la arquitectura moderna de las colonias residenciales. Por otro, el hábitat popular esparcido en todas partes, muchas colonias cercanas al centro y otras de manera irregular en la periferia. En su ocupación participaron los desplazados de las comunidades rurales y los habitantes de la ciudad, producto del crecimiento natural. La primera arquitectura de estos lugares estuvo dominada por un entrecruzamiento cultural entre el medio rural y el citadino, creando con el paso de los años un notable hibridismo en la imagen urbana de estos sectores.

La diferencia entre las viviendas de las colonias populares y las residenciales consiste, entre otras cosas, en su proceso de construcción. La vivienda popular se construye por etapas “que pueden llegar a significar la espera de toda la vida de las familias; incluso, pasando el largo proceso inacabado a los hijos y nietos” (Argüello, Argüelles y Badillo, 2012), sin la supervisión de un profesional, con un presupuesto que depende de su salario, regularmente bajo. La vivienda en los barrios residenciales, en cambio, se erige en una sola etapa, con los criterios del funcionalismo mexicano y la supervisión de arquitectos o ingenieros (Pineda, 2016; Turner, 2018; Andrade, 2019).
La mayoría de las primeras construcciones en las colonias populares consistió en una choza o un jacal, reproduciendo la vivienda vernácula. Después se transformó en vivienda popular (Figura 13), pero mantuvo algunas similitudes con la arquitectura vernácula, ya que siguió siendo anónima, hecha por el pueblo, por maestros albañiles, utilizando materiales de construcción propios de la vernácula, pero combinados con materiales industriales que le otorgaron un carácter urbano (Pineda, 2016).
Es importante conocer e identificar de la vivienda popular su “progresividad”, su lento proceso de construcción y cómo se transforma a la vez que es habitada por los usuarios (Andrade, 2019). Andrade insiste en que este proceso puede llevar entre 15 y 30 años, “durante los cuales al menos una generación se sacrifica viviendo en condiciones mínimas de habitabilidad para lograr que las siguientes generaciones vivan mejor” (p. 36).
El arquitecto inglés John F. Turner (2018) otorga algunas ventajas a estas “construcciones ilegales”, como la adaptabilidad del espacio y las estructuras a las necesidades cambiantes de una familia que crece de manera constante. Una familia puede aumentar hasta llegar a más de diez integrantes y después verse reducida a solo los padres, en el caso de que los hijos abandonen el hogar, o bien, la casa puede llegar a subdividirse entre los hijos. El estilo de vida de la familia también es cambiable: de haber iniciado con una invasión, se transforma en una de clase media urbana.
Hace más de 60 años que se dieron las primeras invasiones en Culiacán y, por tanto, dos generaciones han participado en la construcción de esas arquitecturas. Algunos sectores permanecen como zona habitacional. Otros se han convertido en zonas comerciales, sobre todo por donde cruzan las vialidades de mayor circulación.

A partir de las ideas de diversos investigadores (Pineda, 2016; Turner, 2018; Andrade, 2019) junto con lo que se ha observado en la conformación de las colonias populares, enlistamos algunas características de las viviendas populares que surgieron en Culiacán durante estas décadas:
· En la mayoría de los casos, la primera construcción fue similar al patrón cultural de las viviendas de sus comunidades rurales. Utilizaron materiales como tejabanes de lámina, muros de ladrillo parado y materiales reciclados.
· Cuando las condiciones económicas mejoraron, construyeron un cuarto con tabique y concreto.
· La ampliación dependía de los ingresos del jefe de familia, del aumento de la familia o si algún hijo aportaba recursos para su ampliación.
· Fue a través de la autogestión o autoconstrucción. El usuario financió, programó, supervisó y diseñó su vivienda.
· Las colonias empezaron a mostrar una imagen urbana distinta en un periodo de 15 a 30 años, lapso en el que muchas familias terminaron de construir sus viviendas, se regularizó la tenencia de la tierra y se empezaron a introducir servicios.

Conclusiones
El siglo XX tiene inicios muy complicados en México. Tras la Revolución mexicana, el país debía reconstruirse y, en consecuencia, los avances principales de desarrollo urbano se dieron del campo a la ciudad a partir de la década de los veinte. Sin lugar a duda, en el caso de Culiacán, la primera mitad del siglo XX resultó fundamental en la conformación de la ciudad y por lo tanto de su identidad, a través de la producción de la vivienda popular.
En 1940 existían 4405 viviendas y en 1970 llegaron a 33 591. Este crecimiento fue principalmente en los sectores populares. 26 873 fueron viviendas populares caracterizadas por su “progresividad”, tratándose de viviendas anónimas, hechas por el pueblo, con una función vital en la imagen urbana de la ciudad moderna. Asimismo, experimentaron una gran variedad de formas y decoraciones arquitectónicas, lo que provocó un hibridismo cultural que se extendió casi por toda la ciudad. Son evidentes las copias de los estilos académicos y el uso de los materiales de la época, lo que resultó en modelos tipológicos muy particulares de la época y de Culiacán, que a fin de cuentas otorga identidad a las colonias.
A su vez, se han elaborado pocos análisis que reconozcan el valor que tiene la vivienda popular en las ciudades mexicanas, sobre todo las que corresponden al siglo XX. Igualmente, en esta consideración es necesario resaltar que hay muchas ciudades mexicanas que formaron su patrimonio arquitectónico en el siglo XIX o XX, y por ende es necesario apreciar su legado.
También resulta relevante resaltar que el crecimiento urbano de Culiacán hasta 1970 se dio hacia el oriente y el poniente, paralelo al río Tamazula, como lo había sido durante toda la historia de la ciudad (Figura 14). Este factor se empieza a revertir a partir de la década de los ochenta, cuando el sur y el norte empiezan a tener una expansión considerable hasta convertirse en los lugares de mayor desarrollo de Culiacán en la actualidad.

A manera de conclusión, mencionamos que queda abierta la posibilidad de profundizar en el estudio de la práctica implementada por los Ayuntamientos sobre los lotes baldíos en la primera mitad del siglo XX para determinar su influencia en la configuración urbana de la ciudad moderna. Se requiere también investigar sobre la participación de la Dirección de Pensiones Civiles del Gobierno del Estado de Sinaloa en la construcción de viviendas, antes de que esta se transformará en el ISSSTE. Por otro lado, sería interesante ampliar el periodo de estudio hasta la época contemporánea para analizar los diversos rumbos que ha tomado la vivienda popular y el papel que juega en la expansión urbana de las últimas décadas, así como su adaptación a la posmodernidad.
Referencias bibliográficas
Alfaro, S. (2006). Análisis del proceso de autoconstrucción de la vivienda en Chile: bases para la ayuda informática para los procesos comunicativos de soporte [tesis de doctorado, Universitat Politècnica de Catalunya]. Repositorio UPC. DOI: 10.5821/dissertation-2117-94154
Andrade, J. (2019). Formas de habitar: arquitectura y vivienda popular. México: UAM.
Amaral, V. (2022). La modernidad cultivada: los empresarios agrícolas en la arquitectura y el urbanismo de Culiacán (1940-1960) [tesis de doctorado, Universitat Politècnica de Catalunya]. Repositorio UPC. DOI: 10.5821/dissertation-2117-377147
Argüello, T., Argüelles, B. y Badillo, R. (2012). Características físicas de la vivienda popular en la periferia urbana de Tuxtla Gutiérrez, Chiapas, México. Quehacer científico en Chiapas, 1(14), 4-13.
Capel, H. (2005). La morfología de las ciudades II: aedes facere: técnica, cultura y clase social en la construcción de edificios. Barcelona: Del Serbal.
Capel, H.(2013). La morfología de las ciudades III: agentes urbanos y mercado inmobiliario. Barcelona: Del Serbal.
Carvajal, R. (2019). Vivienda de interés social y planeación urbana en Culiacán de 1972 a 1980 [tesis de maestría, Universidad Autónoma de Sinaloa]. Repositorio UAS. https://historia.uas.edu.mx/historia/wp-content/uploads/2019/12/TESIS-VIVIENDA-DE-INTER%C3%89S-SOCIAL-Y-PLANEACI%C3%93N-URBANA.pdf
Cervantes, J. (2020, 11 de noviembre). En México, dos terceras partes de la población construyen sus viviendas, reconoce la SEDATU. El Debate. https://www.debate.com.mx/estados/En-Mexico-dos-terceras-partes-de-la-poblacion-construye-sus-viviendas-reconoce-la-Sedatu-20201111-0031.html
COPEVI (Centro Operacional de Vivienda y Poblamiento) (1977). Investigación sobre vivienda III: Las políticas habitacionales del Estado mexicano. México: COPEVI.
De Mattos, C. y Link, F. (eds.) (2015). Lefebvre revisitado: capitalismo, vida cotidiana y el derecho a la ciudad.Santiago: RIL editores; Instituto de Estudios Urbanos y Territoriales.
Duhau, E. (1991). Urbanización popular y políticas de suelo en la Ciudad de México. En M. Schteingart (coord.), Espacio y vivienda en la Ciudad de México (pp. 139-160). México: El Colegio de México; I Asamblea de Representantes del Distrito Federal.
García Peralta Nieto, B. (2016). La vivienda y el Estado mexicano durante el siglo XX: un enfoque desde la economía política. México: UNAM, Instituto de Investigaciones Sociales.
Garza, G. y Schteingart, M. (1978). La acción habitacional del Estado en México. México: El Colegio de México.
Instituto Nacional de Estadística y Geografía (INEGI) (2020). IV Censo general de habitantes de 1921, V Censo de población de 1930, VI Censo de población de 1940, VII Censo general de población de 1950, VIII Censo general de población de 1960, IX Censo general de población de 1970 y X Censo general de población y vivienda de 1980. Recuperado en diciembre de 2023 de https://www.inegi.org.mx/programas/ccpv/2020/#Tabulados
Llanes, R. (2002). Luis F. Molina: el arquitecto de la ciudad. Culiacán: COBAES; Instituto La Crónica de Culiacán.
Luna, F. (2024). Del modelo estatista al financiero en la producción de vivienda en la Zona Metropolitana de la Ciudad de México. Decumanus, 13(13). DOI: https://doi.org/10.20983/decumanus.2024.2.5
Romero, G. y Mesías, R. (coords.) (2004). La participación en el diseño urbano y arquitectónico en la producción del hábitat. México: CYTED; HABYTED; FOSOVI; UNAM.
Pineda, A. (2016). Arquitectura popular mexicana: confrontación de identidades. Guanajuato: Universidad de Guanajuato.
Perló, M. (1979). Política y vivienda en México 1910-1952. Revista Mexicana de Sociología, 41(3), 769–835. https://revistamexicanadesociologia.unam.mx/index.php/rms/issue/view/4705
Salazar, C. (2019). El nudo gordiano de la regularización. En L. J. Sobrino y V. Ugalde (eds.), Desarrollo urbano y metropolitano en México (pp. 171-201).México: El Colegio de México.
Sánchez, M. (2005). Rezagos de la modernidad: memorias de una ciudad presente. México: Universidad Autónoma Metropolitana.
Turner, J. (2018). Autoconstrucción: por una autonomía del habitar. Logroño: Pepitas de calabaza.
Archivos
Archivo Histórico del Municipio de Culiacán (AHMC).
Archivo Histórico del Congreso del estado de Sinaloa (AHCES).
Archivo General de Notarías del Estado de Sinaloa (AGNES).
Notas
Notas de autor
Enlace alternativo
https://erevistas.uacj.mx/ojs/index.php/decumanus/article/view/6995 (html)

