

Dossier temático
El Instituto Nacional (del Caballito), 1890-1898. Un espacio para la educación que quiso nacer como público
National Institute (of Caballito), 1890-1898. A space for education intended to be public from its very beginning
A&P continuidad
Universidad Nacional de Rosario, Argentina
ISSN: 2362-6097
ISSN-e: 2362-6089
Periodicidad: Semestral
vol. 7, núm. 13, 2020
Recepción: 07 Julio 2020
Aprobación: 11 Noviembre 2020

CÓMO CITAR: Toranzo, V. A. (2020). El Instituto Nacional (del Caballito), 1890-1898. Un espacio para la educación que quiso nacer como público. A&P Continuidad, 7(13). https://doi.org/10.35305/23626097v7i13.254
Resumen: El Instituto Nacional (del Caballito), nacido en este barrio de Buenos Aires, fue el resultado de una innovadora experiencia educativa realizada en nuestro país por el gran educador Pablo A. Pizzurno. Rodeándose de otros importantes pedagogos –entre ellos Enrique Romero Brest–, formó un Instituto Modelo en su género: un espacio que quiso nacer como público, pero que finalmente fue privado. En él se gestaron grandes proyectos, se iniciaron grandes reformas. Un espacio del pasado, que abrió un gran horizonte al futuro. Fue un laboratorio educativo, en donde se pusieron en práctica aquellas ideas de avanzada.
Palabras clave: educación, espacios escolares, experiencia educativa, escuela modelo.
Abstract: National Institute (of Caballito) -set in this neighborhood of Buenos Aires- was the result of an innovative experience carried out by the great educator Pablo A. Pizzurno. Together with other important pedagogues -among them Enrique Romero Brest-, he established a Model Institute: a space intended to be public from its very beginning though it became finally private. It embodied the starting point for important projects and reforms. A space from the past gave rise to a meaningful horizon towards the future. It functioned as an educational laboratory where advanced ideas were put into practice.
Keywords: education, school spaces, educational experience, model school.
Introducción
Esta experiencia, muy poco conocida y difundida, se reconstruye siguiendo el rastro de tres direcciones: Rivadavia al 5500, Cangallo 1728 y Flores, el ex Polvorín, hoy Parque Chacabuco y una fotografía de tres mosqueteros de la educación: Pizzurno, Victorín y Romero Brest, con un pizarrón de fondo. Recorriendo los espacios, se llega a la experiencia educativa. Un viaje por la ciudad de Buenos Aires, con escala en archivos de Suecia, hizo que pudiera reunirse el material presentado, armando esta parte de la historia de la educación argentina, en donde se gestaron varias reformas del sistema educativo. Viajeros ellos, viajera quien investiga, relatamos a continuación el origen, lo que fue y significó el Instituto Nacional (del Caballito). Mientras en otras partes del mundo se ponían en práctica ideas de vanguardia, aquí también, en Buenos Aires (Argentina), Pizzurno –con casi 25 años– y un grupo de educadores llevaban adelante una escuela laica modelo, la escuela que soñaron.
Nuestros edificios escolares públicos aplaudidos en el exterior
Hacia fines del siglo XIX, la educación argentina era muy bien vista en el exterior. En el año 1889, en la Exposición Universal de París que celebraba el centenario de la Revolución Francesa, el Consejo Nacional de Educación (CNE) obtiene el Gran Premio por los progresos de nuestra educación primaria y su presidente, el Dr. Benjamín Zorrilla, recibe una medalla de oro por sus esfuerzos. Allí estuvo Pizzurno –como delegado del CNE, organizando nuestra exposición escolar–, asistiendo a los diferentes congresos sobre educación y obsequiando álbumes de fotografías de nuestros edificios escolares a varias personalidades de la enseñanza, como el Presidente de Francia, Sadi Carnot, y su Ministro de Instrucción Pública. Estas fotografías provocaron el aplauso de los más grandes educadores, entre ellos Gréard y Buisson, a quienes les costaba creer que ya teníamos 40 edificios escolares en Buenos Aires y otros en construcción.
Años después, en 1915 –en un discurso titulado “Edificios escolares. Sus deficiencias ¿Cómo debe planearse su construcción? Un poco de historia”, pronunciado en la provincia de Córdoba y publicado en La Voz del Interior, mencionaría públicamente aquello que dijera al presidente del CNE sobre nuestros edificios escolares:
“Las fotografías eran en su mayor parte de fachadas y los planos no figuraban en el álbum. Y confieso que sentí subírseme los colores al rostro al pensar que pudiera ocurrírseles pedirme detalle del interior de las casas, que tanta admiración provocaban. ¿Hubiera sido patriótico contar la verdad? ¿Era lícito mentir? No hubiera mentido y de ahí mi sonrojo anticipado. Por fortuna no me preguntaron eso” (Comisión Homenaje, 1934, p. 286)1.
También le habría manifestado en aquella oportunidad, su descontento ante la deficiencia de los edificios escolares, confiados exclusivamente a ingenieros y empresarios, olvidándose de la intervención de algunos profesores capacitados, con conocimiento de los detalles pedagógicos. Pizzurno se refería a las ideas que –junto a otros educadores– venían difundiendo, acerca de una educación física que requería de espacio, grandes patios; y de incorporar la enseñanza manual, necesitada de talleres y de parcelas de tierra para cultivar.
Un instituto que no pudo ser público…
Así es como Pizzurno, recién llegado de su visita por Europa, propone al Dr. Benjamín Zorrilla la fundación de una escuela primaria modelo. Esta idea ya la había expuesto previamente en 1885, en el Centro Unión Normalista y, en marzo de 1889, también había coincidido con un breve proyecto redactado por el Dr. J. Alfredo Ferreira2, en su Revista de la Enseñanza. En un principio, Zorrilla –fundador de numerosas escuelas durante su gestión– le dijo que sí pero luego, por razones económicas no puede concretarlo. “Zorrilla no arriesga”, diría Félix E. Cichero, en su libro sobre Los Pizzurno (1965, p. 126).
En aquel viaje, Pizzurno había recorrido nueve países: Francia, Alemania, Bélgica –ganando el aprecio del director de la Escuela Normal Modelo de Bruselas, Alexis Sluys–, Inglaterra, Italia, Suiza, Dinamarca, Suecia y España. Se detuvo a estudiar, preferentemente, la organización de la enseñanza secundaria y normal y la preparación de los maestros y profesores y, entre las especialidades, el trabajo manual, una de sus mayores preocupaciones.
Visitó numerosas escuelas en donde se desarrollaban experiencias educativas de vanguardia, como la Escuela Normal de Nääs (Fig. 1 y 2), Suecia. Durante seis semanas del verano europeo –29 de mayo al 12 de julio de 1889– formó parte del curso Nº46 (Fig. 3), estudiando slöjd, método de enseñanza que combinaba el trabajo manual con el esfuerzo intelectual, creado por Otto Salomon3 e inspirado en las ideas del finlandés Uno Cygnaeus, su maestro y amigo. Pizzurno sabía de estas ideas y fue hacia ellas; en Nääs se relacionó con numerosos educadores de diferentes países y obtuvo la admiración del director de la escuela, Salomon. Con gran emoción ese 9 de julio, día de nuestra independencia, en el que dio una conferencia sobre las escuelas argentinas recordó Pizzurno que el director, al estrecharle la mano, le dijo: “Nunca, francamente, nunca hubiéramos creído que allá, en el Sud, se encontrara un país con tales adelantos” (Comisión Homenaje, 1934, p. 41).



Fue un viaje de mucho aprendizaje, Pizzurno era un educador muy inquieto y entusiasta. Más adelante, en 1914, hizo referencia a los métodos aprendidos y desarrolló sus ideas de llevar adelante una educación de vanguardia, de carácter oficial, público y modelo. En el discurso titulado: “El Instituto Superior Nacional de Educación Física. Su evolución y su influencia en los progresos de la cultura física en el país”, pronunciado con motivo de la inauguración del nuevo local del Instituto de Educación Física, dijo:
Hace casi un cuarto de siglo, a mediados de 1890, de regreso de un viaje de estudio a través de los establecimientos de enseñanza primaria, normal y secundaria de nueve naciones europeas, intenté fundar en Buenos Aires, en carácter oficial, un instituto modelo en el que procuraríamos introducir los mejores métodos y procedimientos de enseñanza y ensayar toda práctica que importase en progreso. Resolvimos hacerlo entonces particularmente y ese fue el origen del Instituto Nacional del Caballito […]. Entre las iniciativas llevadas a cabo figuraron la introducción de la enseñanza manual y los ejercicios físicos y juegos atléticos (Comisión Homenaje, 1934, p. 259).
Espacios escolares para una escuela que buscó ser modelo
Ante la negativa del presidente del Consejo Nacional de Educación, Pizzurno funda y dirige de manera privada, entre 1890 y 1898, el Instituto Nacional y lo incorpora al Colegio Nacional4. Lo acompañan en esta gran aventura educativa su socio Juan Tufró y sus hermanos, Juan –en el Internado– y Carlos –en la vicedirección–; incorporándose más adelante, en 1893, Romero Brest.
El Instituto Nacional se abre en la Capital, fundándose el Internado en un gran edificio “en el Caballito” y comenzando sus clases el 1 de julio de 1890. Un año después se funda la Plaza de juegos, en Flores y, más adelante, en 1893, se abre el Externado, en el centro de la ciudad de Buenos Aires.
Este instituto laico, que intentó nacer como público, contó con cursos primarios, secundarios y comerciales, los cuales funcionaron en espacios considerados apropiados para poner en práctica una educación de vanguardia. Espacios grandes, amplios, abiertos; con talleres, gimnasios, patios y jardines, distribuidos en tres lugares: Caballito, Flores y el centro, y conectados con un servicio de ómnibus especiales.
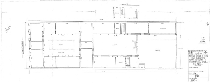
Por una parte, se encontraba el Internado, que se constituyó en “modelo por su organización y eficacia” (Fig. 4 y 5), destinado a los alumnos del interior, con un amplio local en “calle Rivadavia, en el ‘Caballito’” (Pizzurno y Tufró, 1891); con talleres, un gran gimnasio especial, cancha de pelota y de bochas, grandes patios y jardines5.


Por otra parte, se ubicaba el Externado (Fig. 6 y 7) que funcionaba en el centro, en la calle Cangallo 1728: “era un espacioso caserón muy semejante a la casa de mi familia, y existe aún intacto”, recuerda el exalumno Alberto M. Gowa, en su diario infantil. También hace referencia a un segundo patio, al recordar que los retrataron allí, y cuenta que había tres recreos cortos y uno largo, y que jugaban al Rescate, la bolita, el Mosquito Bomba, la pelota y las carreras (1944, p. 13).


Finalmente, se disponía de un gran terreno, de 12 hectáreas, frente al entonces Polvorín (hoy Parque Chacabuco), con huerta, arbolado, frutales, vacas lecheras, caballos, ovejas, cerdos, aves de corral, palomas y otros animales de distintas clases (inclusive reptiles) utilizados algunos para la alimentación de los pensionistas y pupilos, otros para los carruajes especiales del Instituto y todo para la enseñanza de las ciencias naturales y la agricultura. Dos hectáreas/manzanas estaban destinadas a la Plaza de juegos6 y ejercicios físicos, pistas especiales para saltos y carreras con y sin obstáculos. Aquí estuvieron las primeras canchas de foot-ball en Buenos Aires para argentinos. Dirigía los juegos atléticos Enrique Romero Brest, un joven correntino estudiante de medicina que había aprendido en el Colegio Nacional de Corrientes7. En esta plaza se realizaban torneos al aire libre de tennis y foot-ball, luego de lo cual se compartía una taza de té. Este espacio también contaba con un quiosco, construido de manera gratuita por los alumnos de la escuela industrial.
Pizzurno y Tufró publicaron un folleto con el programa del Instituto Nacional y los juicios de la prensa, donde explicitaron los fines del mismo, respaldados en sus títulos de profesores, experiencias en escuelas y conocimientos del mundo en materia educativa:
“Es conocida nuestra concepción de lo que ha de ser la escuela. Hemos aprendido en la Escuela Normal, hemos seguido estudiando después al entrar a la lucha en las escuelas de la Capital y hemos ampliado nuestros conocimientos profesionales, recorriendo expresamente los establecimientos educacionales de casi toda la Europa” (Pizzurno y Tufró, 1891, p. 4).
De esta manera, dejan en evidencia la necesidad del país de contar con instituciones que posean una educación completa: integral, en armonía con las necesidades del niño y nacional, que lo prepare para ser digno ciudadano; con una cultura física que no se separe de la intelectual y moral, una cultura estética para despertar amor a lo bello y, por último, el desarrollo de hábitos de urbanidad.
En el folleto citado anteriormente, detallan toda la organización de la enseñanza. La primaria se dará en seis grados e incluirá: Lectura, Escritura, Idioma Nacional, Geografía, Historia, Aritmética, Geometría, Ciencias naturales, Instrucción Cívica y Nociones de Filosofía Moral, Nociones de Física y Química, Dibujo, Solfeo, Canto, Gimnasia y Trabajo Manual. También idioma francés e inglés.
La secundaria comprenderá el estudio de los programas de los Colegios Nacionales hasta el tercer año en un principio, luego se incorporarán cuarto y quinto. El Instituto se halla incorporado al Colegio Nacional, pudiendo los alumnos, luego de los estudios primarios realizados en el mismo ingresar al Colegio Nacional, a la Escuela Normal o seguir el Curso Comercial. También se prepara para la Escuela Militar, Naval y Agronómica. Habrá asimismo profesores para la enseñanza de ramos especiales y de adornos: Pintura, Música instrumental, Esgrima, Equitación, etc.
Pizzurno y Tufró hacen especial énfasis en la reputación y distinción de los profesores de la institución: la educación primaria, a cargo de maestros egresados de las Escuelas Normales de la Capital, San Nicolás y Paraná8; y la educación secundaria, con profesores de competencia excepcional, muchos de ellos universitarios y con títulos pedagógicos de Escuela Normal, como Casio Basaldúa, Francisco Beiró, Alfredo J. Ferreria, Julio Molina y Vedia, Adolfo Van Gelderen, entre muchos otros.
Los profesores dictaban diferentes materias9, por ejemplo, Juan Pizzurno se ocupaba de la cátedra de Historia y también era jefe de estudios y profesor de Instrucción Cívica, Castellano y Geografía en los cursos secundarios y comerciales. La buena formación de maestros y profesores permitiría llevar adelante diferentes métodos y prácticas de educación integral: educación física, trabajo manual, excursiones, exposiciones, audiciones musicales y literarias, poesía, lecturas seleccionadas, proyecciones luminosas, decoración escolar, buen uso del lenguaje, entre otros.
Los directores detallan también las condiciones de ingreso de los alumnos externos, medio-pupilos e internos, el precio de la institución según las condiciones y de los ómnibus, el horario –que varía según sea la primera o segunda época del año– y mencionan las excursiones a museos, establecimientos industriales, jardines, campo.
Manifiestan una especial atención hacia la participación de los padres en la educación de sus hijos, pudiendo visitar el Instituto en cualquier momento, ofreciendo a las familias católicas la enseñanza religiosa a cargo de Juan Nepomuceno Terrero, Fiscal General Eclesiástico, y luego Obispo de La Plata. Hacen también algunas recomendaciones a tener en cuenta para trabajar en acuerdo familia y maestro, simplificando la tarea de la educación de los niños.
En la primera exhibición pública que hace el Instituto, a solo cinco meses de haberse fundado –con el local aún no utilizado en su totalidad, por trabajos que se estaban realizando–, se invita a los padres a recorrerlo y Pizzurno les dice: “¡Venid, venid siempre! Las paredes de una escuela deben ser de cristal, se ha dicho, y con mucha razón; deben ser de cristal para que todo el mundo pueda ver lo que pasa dentro: los padres porque dentro están sus hijos y el pueblo y el estado, porque esos hijos serán mañana ciudadanos (1890, p. 600).
La prensa los acompañó y las familias también. El 1º de julio de 1890, La Educación publicaría:
Instituto Nacional.
La creación del Instituto Nacional responde a llenar una necesidad sentida en esta Capital, pues hasta la fecha no hay un establecimiento de educación que verdaderamente reúna las exigencias indispensables de higiene, buenos métodos de enseñanza, y sobre todo un colegio donde se formen ciudadanos capaces de bastarse a sí mismos.
El Instituto Nacional comprende la enseñanza primaria y secundaria y además prepara a los alumnos que deseen ingresar a las escuelas: Militar, Naval, de Comercio y Agronómica.
El personal docente está formado por profesores diplomados […]
Para dar las clases de trabajo manual traerán un profesor de Europa.
En cuanto al local que ocupa el Instituto Nacional no puede ser más apropiado sobre todo si se tiene en cuenta que ha sido construido con este objeto; amplio, alejado del centro de la Ciudad, con buenos jardines y espaciosos patios para recreos y a inmediaciones de hermosas plazas. […] (Pizzurno y Tufró, 1891, pp. 17-18).
Osvaldo L. Bottaro, exalumno del Instituto, diría orgulloso años después de su escuela: “la escuela laica, si tenía algún representante de mérito, se engrosó con la creación del Instituto Nacional”, al compararla con las escuelas de renombre de la época, a cargo de los jesuitas: San José, El Salvador, Lacordaire, Lasalle (Comisión Homenaje, 1934, p. 25).
Una institución que había nacido de manera privada, pero que siempre conservó el sueño de ser pública, donde la gran mayoría de sus profesores provenían de la Escuela Normal y, por eso, ofreció educación laica y fue un faro de prácticas diferentes, que luego terminaron en reformas para todo el sistema educativo.
Trabajo manual y educación física, dos grandes apuestas
El trabajo manual fue el gran objetivo de Pizzurno. Había regresado deslumbrado con sus estudios en Nääs y, en 1896, en una conferencia leída en la Escuela Normal de Profesores, decía: “Vengo afirmando hace algunos años que el trabajo manual educativo, y llamo así al que responde a los principios de la célebre Escuela de Nääs, se armoniza con las leyes y reglas pedagógicas que deben regir la educación general” (Comisión Homenaje, 1934, p. 124). Entre los fines precisados en Nääs, que Pizzurno difunde –y sostiene que algunos también se pueden llevar adelante con otras asignaturas–, se incluían: despertar el gusto y el amor por el trabajo en general, respeto por el trabajo corporal, desarrollar independencia y confianza, acostumbrar al orden, la exactitud; promover la atención, interés, aplicación, perseverancia y paciencia, perfeccionar la vista y el sentido de la forma, dar una habilidad manual general y desarrollar las fuerzas desde el punto de vista físico.
Para dirigir la enseñanza manual (Fig. 8) vino de Suecia, en 1893, el profesor Gerardo Victorín10, egresado de la Escuela Normal de Nääs, y fue su ayudante Romero Brest, quien había realizado los cursos de trabajo manual en Corrientes, con el profesor sueco Carlos M. Hordh.

Pizzurno quería introducir el trabajo manual en todas las escuelas, para ello pensó en la formación docente y le propuso al presidente del Consejo Nacional de Educación, Zorrilla, dictar los cursos en el Instituto Nacional. Se dictaron cursos para “personal docente de las escuelas públicas de la Capital” (en un principio), a partir de enero de 1895, para los cuales “se completó la instalación aumentando el número de bancos del taller y las correspondientes dotaciones de herramientas” (Pizzurno, 1896, p. 73). Fueron finalmente tres cursos normales para maestros, dos en 1895 y uno en 1896. Pizzurno se encargó de la teoría y pedagogía, y Romero Brest de la dirección del curso práctico.
Sumando a la difusión de la disciplina, Pizzurno, con Victorín y Romero Brest como colaboradores, funda la revista El Trabajo Manual (1896). Una fotografía muy interesante los encuentra reunidos en el Instituto (Fig. 9). El profesor Valentín Mestroni los llamará “los tres mosqueteros de la educación”, Pizzurno –en el dorso de otra fotografía un poco posterior– escribirá “es el triunvirato de los grandes y buenos amigos”. Mosqueteros o partícipes de un gran triunvirato, los tres profesores, colegas y amigos, sellarán aquel momento del 3 de marzo de 1896, dejando por escrito en el pizarrón que los acompaña “En lo fundamental y en el fondo, estamos de acuerdo” y firman “Álamo, Abedul, Morotibí”, identificándose con un árbol según sus características. Pizzurno, alto, estaría representado con el álamo; Victorín, con el abedul, árbol europeo, y Romero Brest, correntino, con el árbol criollo, originario de nuestro territorio, Morotibí o palo blanco (Saraví Rivière, 1998, p. 44). El trabajo manual los encontró y, juntos, fueron soñando y trabajando por muchos aspectos más de la educación.

Pizzurno inicia el primer número de la revista con un retrato de Salomon, y un relato a manera de prólogo y homenaje hacia aquel gran maestro –con quien continuó carteándose durante varios años. Allí relata algunas palabras que el mismo le dijera al entregarle su diploma de fin del curso slöjd y que, de alguna manera, significaron un reconocimiento a la educación en nuestro país:
‘No olvidéis bajo la Cruz del Sud que la Estrella del Norte centellea en el cielo de un país en el que ni la nieve ni los hielos del invierno podrán impedir que corazones amigos palpiten calurosamente por vos’, me dijisteis al despedirme en la última y solemne ceremonia de la entrega de los certificados.
¡Ah, no, mi noble maestro, nunca olvidaré ese pedazo precioso de tierra que Nääs se llama y donde durante dos meses no habéis permitido que la bandera argentina dejase de flamear, confundida con la sueca, frente a la Escuela Normal! ¡He sido demasiado feliz en él para olvidarlo! (1896, p. 4)
Pizzurno recuerda con gran felicidad lo vivido en aquella escuela de Nääs. El investigador Thorbjörnsson (1999) se referirá al “espíritu de Nääs”, como aquel que quedó en cada uno de los participantes de los cursos, en donde se brindaba una formación integral, que consistía en trabajos prácticos, teóricos y debates, a los que se sumaban las danzas populares, juegos y canciones; y se organizaban también fiestas y excursiones. Todo esto durante seis semanas, alternando trabajo y ocio, en el marco de la belleza natural del lugar y la acogedora hospitalidad.
Así como Pizzurno se ocupó del trabajo manual incesantemente, también luchó por abandonar la gimnasia de aparatos, en espacios cerrados, y apostó por los juegos y ejercicios físicos al aire libre, en espacios abiertos. En ambas disciplinas, pero sobre todo en la Educación Física, Romero Brest fue su gran colaborador, sucesor e iniciador de grandes reformas, en acuerdo con ello dirá más adelante (1905, p. 162): “El pulmón de la Escuela está en sus patios y en sus Plazas de juego”, refiriéndose a la vida natural ofrecida en estos espacios abiertos, en contraposición con los gimnasios cerrados.
Estas ideas venían gestándose con anterioridad. Ya en el año 1885, Pizzurno publicaba un trabajo titulado “Pobres criaturas; o sea la educación física en nuestras escuelas”. Allí mencionaba las consecuencias de la vida sedentaria, atribuyendo a la escuela la tarea de generar en el niño el “hábito del ejercicio”. “No se trata de educar ni un cuerpo, ni un alma: se trata de educar un hombre”, decía (Comisión Homenaje, 1934, p. 258). Así continuó Pizzurno con su propaganda en favor de hacer más racional e integral la enseñanza primaria, secundaria y normal.
En 1893, en otro trabajo, titulado “El ejercicio físico en la Escuela Primaria”, proclama estar a favor de aquello propuesto y leído por la Comisión –el profesor Tufró era uno de sus integrantes– en relación a la “superioridad de los juegos y ejercicios libres sobre la gimnasia hecha con aparatos móviles o fijos”. Esta superioridad de los ejercicios naturales sobre los artificiales y la utilización del juego como medio de la educación física, menciona que ya se venía haciendo en países como Inglaterra y Bélgica, y en el mismo Instituto Nacional en Buenos Aires, Argentina. En relación con las reformas edilicias que este cambio requería, indica las adaptaciones necesarias realizadas en el Instituto, retomando una y otra vez el tema del trabajo manual, dado que el ejercicio físico debía pasar al espacio al aire libre:
“en estos momentos el carpintero se ocupa de transformar el gimnasio, con sus argollas, barras, trapecios, perchas, escaleras y demás aparatos, en sala para la otra gimnasia educativa del cuerpo y el espíritu, destinada a invadir las escuelas del mundo entero: el trabajo manual” (Comisión Homenaje, 1934, p. 255).
En aquella asamblea de 1893, Pizzurno consigue hacer votar conclusiones terminantes y claras para lograr el objetivo de implantar los juegos al aire libre, por sobre la gimnasia militar y de aparatos. El profesor Jorge Arizaga dirá: “El país le debe la gran reforma de la educación física” (Comisión Homenaje, 1932, p. 50).
Para Pizzurno, trabajo manual y educación física irán de la mano. Será un gran propagador del uno y de la otra. Al hablar sobre el trabajo manual en una de sus conferencias, en 1896, dirá que “la cultura física está casi completamente abandonada”. Se referirá a todo aquello que en la escuela parece no reconocer la influencia del cuerpo sobre el espíritu y viceversa: los programas, los horarios, el material y el espacio escolar, con lujosos edificios que, si bien “abundan en hermosas fachadas, columnas, decoraciones y mosaicos, carecen en cambio de patios, de aire y de luz suficientes y bien distribuidos”. Se referirá a Boéchat –y su conferencia sobre el trabajo manual, dada en Friburgo (1888)–, quien citara al doctor Kristeller, para afirmar que el trabajo manual, desde el punto de la educación física, tiene un valor importante también debido al trabajo de respiración, circulación de la sangre, aumento de calor corporal y del apetito y regularización de la digestión, que se hace durante el mismo. Finalizará su conferencia, sin meterse demasiado en el tema al que se referiría al día siguiente Romero Brest –el trabajo manual desde el punto de vista higiénico–, expresando: “no viene precisamente a reemplazar a los juegos y ejercicios libres, representa el trabajo manual una gimnasia excelente, con la ventaja de que es hecha con placer, y el placer, está probado, constituye, en el ejercicio físico, un elemento fisiológico importante” (Comisión Homenaje, 1934, p. 133).
Una gran aventura educativa, un espacio que dio origen a muchos otros
La aventura fue grande y la apuesta también. Al abrir el Instituto Nacional, sus fundadores renunciaron a sus puestos de Secretario Inspector del primer distrito, Pizzurno, y catedrático de la Escuela Normal de Profesores, Tufró. Creían que valía la pena. El tiempo lo demostró y sus exalumnos también cuando, al reunirse varios años después –el 3 de diciembre de 1932 (Fig. 10)– con motivo de los cincuenta años de Pizzurno con la educación, fue uno de sus exalumnos, Gowa, quien eligió como espacio de reunión aquel instituto que los vio crecer y formarse: el de la calle Cangallo11.

Quienes pensaron y llevaron adelante el Instituto Nacional (del Caballito) sostuvieron que era necesaria una educación integral que contara con grandes espacios, muchos de ellos al aire libre y con gran presencia de la naturaleza. Este instituto, que nació de manera privada, no se quedó en ello, Pizzurno difundió sus ideas dentro y fuera del mismo, fue un gran propagandista –así le decían, así lo confirmaba– dando conferencias, escribiendo en la prensa diaria y periódica, fundando y publicando revistas educativas como Revista de Enseñanza (1888 a 1890, con Tufró), El Trabajo Manual (en 1896, con colaboradores como Victorín y Romero Brest), La Nueva Escuela (1892 a 1894, con J. A. Ferreira); El Eco de la Escuela (con su hermano Carlos) y El Escolar Argentino, para los alumnos del Instituto Nacional (1896 a 1898), y cumpliendo numerosas y variadas funciones en el ámbito escolar público como profesor y en diferentes cargos de gestión. Por todo ello, esta experiencia educativa y pedagógica fue el inicio de una gran reforma educativa.
A principio de 1898, el Instituto Nacional cerró sus puertas, cerró sus espacios, por varios motivos, según menciona Cichero: “De uno se ha dado cuenta: el excesivo costo de su desarrollo y lo exiguo de sus recursos económicos” (1965, p. 130).
Aquel instituto que comenzó de manera privada sentó bases sólidas para generar gran cantidad de reformas en la educación pública en diferentes áreas: en los programas, en la formación de profesores. El decreto de abril 18 de 1898 –impulsado por Pizzurno, diría Romero Brest– dio origen a una nueva época en la Educación Física:
la reorganización completa de la educación física secundaria suprimiendo los ejercicios físicos militares y sustituyéndolos por un programa conceptuoso de ejercitación física racional […], más de acuerdo con las tendencias científicas modernas (Romero Brest, 1917, p. 10).
Más adelante, a partir de 1901, se dictan los Cursos de Educación Física de Vacaciones (de verano, temporarios). Luego, en 1902, se crean los Cursos Teórico-prácticos de Ejercicios Físicos para Maestros, en las Escuelas Normales de la Capital, en los cuales “podemos decir que se originó el Sistema Argentino de Educación Física” (Saraví Rivière, 1998, p. 49), creado por el Dr. Enrique Romero Brest el mismo año. Poco tiempo después, en 1906, estos cursos se instalan definitivamente como Curso Normal de Educación Física, y hacia 1909, este se convierte en la Escuela Normal de Educación Física que, en 1912, ya sería el Instituto Nacional Superior de Educación Física. Su director era el Dr. Enrique Romero Brest, aquel estudiante de medicina en el Instituto Nacional (del Caballito), al cual Pizzurno le habría pedido, al recibirse de médico, que se quedara “al servicio de la enseñanza”.
Este artículo pretende difundir una experiencia innovadora, de vanguardia, pionera, con grandes ideales y prácticas educativas, realizada en nuestro país hace ya mucho tiempo, que parece haber sido olvidada o tal vez desconocida por muchos, en donde el espacio escolar fue considerado como educador en sí mismo. Una escuela en tres espacios diferentes, cerrados y abiertos, con canchas, jardines, talleres y hasta un servicio de ómnibus especiales que los conectaba. Y era a fines del siglo XIX, en donde Caballito recién se incorporaba a la Capital Federal, donde las escuelas públicas no eran muchas, donde los iniciadores de esta aventura educativa era un grupo de jóvenes viajeros, capacitados, conocedores del mundo y de las experiencias pedagógicas. “Fue una de las más hermosas experiencias pedagógicas hechas en nuestro país, olvidadas, desgraciadamente, y no recogida ni en documentos ni en Memorias, salvo anotaciones desperdigadas, volcadas por algunos de sus protagonistas, que demuestran el escaso valor que se les atribuyó, quizás por la juventud de sus protagonistas” (Saraví Rivière, 1998, p.114).
Recuerdan sus exalumnos todo lo recibido: el sentimiento nacionalista, el bagaje intelectual y moral, la educación del corazón, así como la transparente bondad de los Pizzurno. Por sus aulas, patios y talleres pasaron muchos niños y adolescentes, que luego “se han destacado como grandes figuras de la literatura, de las ciencias, de las artes y de la política de nuestro país” (Comisión Homenaje, 1932, p. 50).
Nuestra educación fue, en una época, reconocida internacionalmente. Aunque ya diría Pizzurno “¡Nadie es profeta en su tierra!” (Comisión Homenaje, 1934, p. 265) al hacer referencia, en 1920 –en un reportaje publicado por La Nación–, a la gran tarea educativa desarrollada por el Instituto Nacional de Educación Física, consagrada en el exterior y muchas veces ignorada en nuestro país.
Agradecimientos
CeNIDE (BNM), bibliotecario Amancio Rodríguez; CDH, sus fundadores, los profesores Filimer Ferro y Diana Solís; Escuela Nº19 D.E. 10 Pablo A. Pizzurno, directora Sabrina Colli y bibliotecaria Marta Clausen; The Regional State Archives in Gothenburg, Per Forsberg; Fundación August Abrahamson, Nääs Slott, Floda, Suecia, Günilla Hallset; Investigador Hans Thorbjörnsson.
Referencias bibliográficas
Cichero, F. E. (1965). Los Pizzurno: Pablo, y sus hermanos Juan y Carlos: ensayos biográficos. Buenos Aires, Argentina: Stilcograf.
Comisión Homenaje. (1932). Pablo A. Pizzurno. Sus bodas de Oro con la enseñanza (1882 – noviembre - 1932). Buenos Aires, Argentina: s/d.
Comisión Homenaje. (1934). El Educador Pablo A. Pizzurno. Recopilación de trabajos. Medio siglo de acción cultural en la Enseñanza secundaria, normal y primaria. Buenos Aires, Argentina: Editorial Librería del Colegio.
Comisión Homenaje. (1942). Breve iconografía del educador Pablo Pizzurno (1865-1940). Buenos Aires, Argentina: s/d.
Gowa, A. M. (1944). Cartas a mí mismo. Diario infantil de un discípulo de Pizzurno. Buenos Aires, Argentina: Imprenta López.
Ministerio de Educación. (1949). Escuelas Primarias. Buenos Aires, Argentina: Talleres gráficos del Consejo Nacional de Educación.
Pizzurno, P. A. (1890). Discurso pronunciado en el Instituto Nacional por el Sr. Pablo A. Pizzurno. Centro Unión Normalista. Diciembre 1890. Revista Pedagógica Argentina, XXVII, 596-603.
Pizzurno, P. A. (1896). El Trabajo Manual. Buenos Aires, Argentina: Compañía Sud Americana de Billetes de Banco.
Pizzurno, P. A. y Tufró, J. (1891). Instituto Nacional. Enseñanza Primaria, Secundaria y Comercial. Buenos Aires, Argentina: Compañía Sud-Americana de Billetes de Banco.
Romero Brest, E. (1905). Curso Superior de Educación Física. Tomo I: Bases Fisiológicas de la Educación Física. Buenos Aires, Argentina: Librería y Casa Editora de Nicolás Marana.
Romero Brest, E. (1917). El Instituto Nacional de Educación Física. Buenos Aires, Argentina: Cabaut y Cía. Editores Buenos Aires.
Saraví Rivière, J. (1998). Aportes para una historia de la Educación Física. 1900 a 1945. Buenos Aires, Argentina: IEF.
Thorbjörnsson, H. (1990). Nääs och Otto Salomon, s1öjden och leken (Nääs y Otto Salomon: productos de artesanía y juegos). Helsingborg, Suecia: OldBildarna.
Thorbjörnsson, H. (1999). Otto Salomon (1849 - 1907). UNESCO: Oficina Internacional de Educación. Disponible en: http://www.ibe.unesco.org/sites/default/files/salomons.PDF
Notas
Notas de autor
ORCID: 0000-0002-2418-7725
veroniktoranzo@yahoo.com.ar
Información adicional
CÓMO CITAR: Toranzo, V. A. (2020).
El Instituto Nacional (del Caballito),
1890-1898. Un espacio para la educación que quiso nacer como público. A&P Continuidad, 7(13). https://doi.org/10.35305/23626097v7i13.254
Enlace alternativo
https://www.ayp.fapyd.unr.edu.ar/index.php/ayp/article/view/254 (html)

